新耐震
FORECAST早稲田FIRST
8階(東京都新宿区馬場下町)
新耐震
FORECAST早稲田FIRST
8階(東京都新宿区馬場下町)
- 賃料(坪単価):
- 相談(@―)
- 共益費(坪単価)
- :
- 賃料に含む (@―)
- 預託金(保証金/敷金)
- :
- ―(12ヶ月)
- 面積
- :
- 157.69坪 (521.29m²)
- 所在地
- :
- 東京都新宿区馬場下町1-1
- 最寄駅
- :
-
早稲田駅まで徒歩1分
早稲田駅まで徒歩12分
若松河田駅まで徒歩13分
牛込柳町駅まで徒歩13分
神楽坂駅まで徒歩15分
物件情報
所在地・アクセス
- 物件名
- FORECAST早稲田FIRST 8階
- 所在地
- 東京都新宿区馬場下町1-1
- 最寄駅
-
東京メトロ東西線 早稲田駅まで徒歩1分
東京さくらトラム(都電荒川線) 早稲田駅まで徒歩12分
都営大江戸線 若松河田駅まで徒歩13分
都営大江戸線 牛込柳町駅まで徒歩13分
東京メトロ東西線 神楽坂駅まで徒歩15分
賃貸条件
- 賃料(坪単価)
- 相談(@―)
- 礼 金
- 無
- 共益費(坪単価)
- 賃料に含む(@―)
- 面 積
- 157.69坪 (521.29m²)
- 賃料+共益費(坪単価)
- 相談 (@―)
- 償 却
- 無
- 預託金(保証金/敷金)
- ―(12ヶ月)
- 入居可能日
- 即日
- 更新料(再契約料)
- 無
- 契約期間
- 2年
物件概要
- 特 徴
- 構 造
- 鉄骨鉄筋コンクリート造/新耐震
- 物件タイプ
- 事務所
- 規 模
- 8階建
- 取引態様
- 一般媒介
- 竣 工
- 1986年7月
- 設 備
-
E V :2基(13人乗)、天井高:2400㎜、床仕様:OAフロア(H=40mm)、空調:個別空調、トイレ: 男女別 洋式
その他:機械警備、駐車場設備あり
- 備 考
-
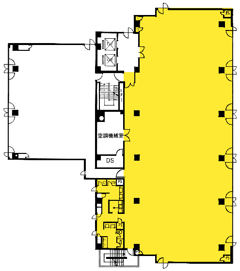
※図面着色部分が募集区画となりますが、契約面積と相違する可能性があることを予めご了承ください。 ■2025年、個別空調更新済 ■貸主指定の清掃会社と貸室内の清掃契約を締結していただきます。 ■廃棄料・粗大ごみ処理費用等を、別途ご負担いただきます。 ■床荷重:300㎏/㎡ ■エントランス開閉時間:月~土7:30~20:00、日祝日・年末年始close ※左記時間帯以外は1階通用からセキュリティ操作により24時間入退館可能
注) 上記の価格には、別途、消費税及び地方消費税が課されます。
消費税率が変更された場合には、以後、変更後の税率が課されることとなります。
物件情報更新日:2026-01-05
お気軽にお問合せください
現在募集中の区画
- 階数
- 面積
- 賃料
- 共益費
- 間取図
- HOME
- >
- エリアから探す
- >
- 新宿区
- >
- 高田馬場・大久保
- >
- FORECAST早稲田FIRST
- >
- FORECAST早稲田FIRST 8階
