印刷する

事務所

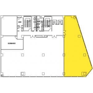
日本生命横浜西口ビル 5階

所在地:神奈川県横浜市西区北幸1-11-7

JR JR京浜東北線 横浜駅まで徒歩4分 横浜高速鉄道みなとみらい線 横浜高速鉄道みなとみらい線 横浜駅まで徒歩4分 横浜市営ブルーライン 横浜市営ブルーライン 横浜駅まで徒歩4分 京急本線 京急本線 横浜駅まで徒歩4分 相鉄本線 相鉄本線 横浜駅まで徒歩4分
区画 面積 賃料 (坪単価) 共益費 (坪単価) 賃料 + 共益費
(坪単価)
保証金 更新料
(再契約料)
償却 入居予定
敷金 礼金 契約期間
5階 167.62m² 相談(@―) 相談(@―) 相談 (@―) 相談 相談 相談 相談
51.00坪 相談 相談
  • ■ 構 造:SRC造、一部RC造
  • ■ E V:2基
  • ■ 規 模:地下2階付8階建
  • ■ 天井高:2420㎜
  • ■ トイレ:共用 男女別 洋式
  • ■ 竣 工:1973年12月
  • ■ 床仕様:OAフロア(H=40mm)
  • ■ その他:
    • ・駐車場設備あり
お問い合わせください。
地図はこちら