新耐震基準適合
日本女子会館ビル
1階5区画(東京都港区芝公園)
新耐震基準適合
日本女子会館ビル
1階5区画(東京都港区芝公園)
- 賃料(坪単価):
- 64,250円(@12,500円)
- 共益費(坪単価)
- :
- 12,850円 (@2,500円)
- 預託金(保証金/敷金)
- :
- 385,500円(6ヶ月)
- 面積
- :
- 5.14坪 (16.99m²)
- 所在地
- :
- 東京都港区芝公園2-6-8
- 最寄駅
- :
-
芝公園駅まで徒歩3分
大門駅まで徒歩7分
大門駅まで徒歩7分
浜松町駅まで徒歩8分
浜松町駅まで徒歩8分
物件情報
所在地・アクセス
- 物件名
- 日本女子会館ビル 1階5区画
- 所在地
- 東京都港区芝公園2-6-8
- 最寄駅
-
都営三田線 芝公園駅まで徒歩3分
都営大江戸線 大門駅まで徒歩7分
都営浅草線 大門駅まで徒歩7分
JR山手線 浜松町駅まで徒歩8分
JR京浜東北線 浜松町駅まで徒歩8分
賃貸条件
- 賃料(坪単価)
- 64,250円(@12,500円)
- 礼 金
- 無
- 共益費(坪単価)
- 12,850円(@2,500円)
- 面 積
- 5.14坪 (16.99m²)
- 賃料+共益費(坪単価)
- 77,100円 (@15,000円)
- 償 却
- 無
- 預託金(保証金/敷金)
- 385,500円(6ヶ月)
- 入居可能日
- 2026年3月1日予定
- 更新料(再契約料)
- 無
- 契約期間
- 2年(定借)
物件概要
- 特 徴
- 構 造
- 鉄骨鉄筋コンクリート造/新耐震基準適合
- 物件タイプ
- 事務所
- 規 模
- 地下1階付8階建
- 取引態様
- 一般媒介
- 竣 工
- 1974年9月
- 設 備
-
E V :2基、天井高:―㎜、床仕様:タイルカーペット、空調:個別空調、トイレ:共用 男女別 洋式
その他:機械警備、有人警備
- 備 考
-
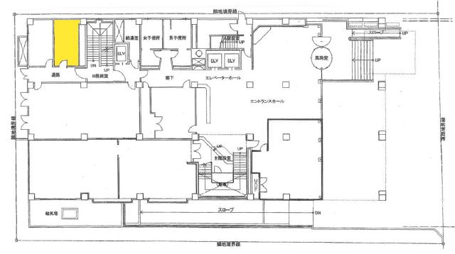
※図面着色部分が募集区画となりますが、契約面積と相違する可能性があることを予めご了承ください。 ■2008年2月、耐震補強工事済 ■2022年3月、トイレ・給湯室リニューアル工事済 ■貸室面積には、共用部の按分面積(1.55㎡)が含まれます。■ビル使用時間制限あり、使用可能時間:平日6:30~22:00、土日祝6:30~22:00 ※元日・受電設備年次点検日は休館 ■共用部の水道料及びトイレットペーパー・ペーパータオルの消耗品費用は面積按分により賃借人負担となります。■貸室内の電気料金は賃料に含まれます。 ■専用部空調機フィルター清掃費用及び日常廃棄物処理費用は賃借人負担となります。■貸主指定の保証会社と保証委託契約を締結していただく場合がございます。
注) 上記の価格には、別途、消費税及び地方消費税が課されます。
消費税率が変更された場合には、以後、変更後の税率が課されることとなります。
物件情報更新日:2026-01-07
お気軽にお問合せください
現在募集中の区画
- 階数
- 面積
- 賃料
- 共益費
- 間取図
- HOME
- >
- エリアから探す
- >
- 港区
- >
- 浜松町・芝大門・芝公園
- >
- 日本女子会館ビル
- >
- 日本女子会館ビル 1階5区画
