印刷する

事務所

PMO日本橋二丁目 7階

所在地:東京都中央区日本橋2-15-5

都営浅草線 都営浅草線 日本橋駅まで徒歩2分 東京メトロ東西線 東京メトロ東西線 日本橋駅まで徒歩2分 東京メトロ東西線 東京メトロ東西線 茅場町駅まで徒歩3分 東京メトロ日比谷線 東京メトロ日比谷線 茅場町駅まで徒歩3分 東京メトロ銀座線 東京メトロ銀座線 日本橋駅まで徒歩5分
区画 面積 賃料 (坪単価) 共益費 (坪単価) 賃料 + 共益費
(坪単価)
保証金 更新料
(再契約料)
償却 入居予定
敷金 礼金 契約期間
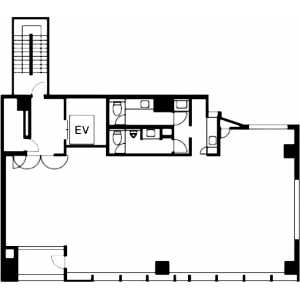
7階 149.00m² 相談(@―) 賃料に含む(@―) 相談 (@―) ―  2026年7月13日予定
45.07坪 12ヶ月 3年(定借)
  • ■ 構 造:鉄骨造/新耐震
  • ■ E V:1基(13人乗)
  • ■ 空 調:個別空調
  • ■ 規 模:10階建
  • ■ 天井高:2750㎜
  • ■ トイレ:専用 男女別 洋式
  • ■ 竣 工:2011年7月
  • ■ 床仕様:OAフロア(H=100mm)
  • ■ その他:
    • ・機械警備

※契約面積や賃貸条件は、㎡を基準単位とします。 ■貸室面積には、トイレ・給湯室等の面積が含まれます。 ■床荷重:500kg/㎡(一部800kg/㎡)  ■コンセント容量:60VA/㎡(75VA/㎡まで増強可能)  ■机上平均照度:750Lx  ■グリッドシステム天井

注) 上記の価格には、別途、消費税及び地方消費税が課されます。
消費税率が変更された場合には、以後、変更後の税率が課されることとなります。

地図はこちら