新耐震
I・T秋葉原ビル
2階(東京都千代田区神田和泉町)
新耐震
I・T秋葉原ビル
2階(東京都千代田区神田和泉町)
- 賃料(坪単価):
- 480,954円(@―)
- 共益費(坪単価)
- :
- 105,810円 (@3,000円)
- 預託金(保証金/敷金)
- :
- ―(7ヶ月)
- 面積
- :
- 35.27坪 (116.40m²)
- 所在地
- :
- 東京都千代田区神田和泉町1-3-13
- 最寄駅
- :
-
秋葉原駅まで徒歩4分
秋葉原駅まで徒歩4分
岩本町駅まで徒歩7分
末広町駅まで徒歩9分
浅草橋駅まで徒歩12分
物件情報
所在地・アクセス
- 物件名
- I・T秋葉原ビル 2階
- 所在地
- 東京都千代田区神田和泉町1-3-13
- 最寄駅
-
東京メトロ日比谷線 秋葉原駅まで徒歩4分
JR山手線 秋葉原駅まで徒歩4分
都営新宿線 岩本町駅まで徒歩7分
東京メトロ銀座線 末広町駅まで徒歩9分
JR中央線 浅草橋駅まで徒歩12分
賃貸条件
- 賃料(坪単価)
- 480,954円(@―)
- 礼 金
- 賃料の1ヶ月分
- 共益費(坪単価)
- 105,810円(@3,000円)
- 面 積
- 35.27坪 (116.40m²)
- 賃料+共益費(坪単価)
- 586,764円 (@―)
- 償 却
- 賃料の2ヶ月分
- 預託金(保証金/敷金)
- ―(7ヶ月)
- 入居可能日
- 2026年4月1日予定
- 更新料(再契約料)
- 新賃料の1ヶ月分
- 契約期間
- 2年
物件概要
- 特 徴
- 構 造
- 鉄筋コンクリート造/新耐震
- 物件タイプ
- 事務所
- 規 模
- 6階建
- 取引態様
- 一般媒介
- 竣 工
- 1991年3月
- 設 備
-
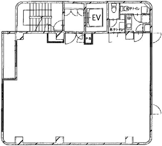
E V :1基、天井高:―㎜、床仕様:―、空調:個別空調、トイレ:専用 男女別 洋式
その他:機械警備、エントランスセキュリティ
- 備 考
-
■貸主指定の火災保険にご加入いただきます。 ■貸主指定の保証会社と保証委託契約を締結していただきます。
注) 上記の価格には、別途、消費税及び地方消費税が課されます。
消費税率が変更された場合には、以後、変更後の税率が課されることとなります。
物件情報更新日:2026-02-09
お気軽にお問合せください
- HOME
- >
- エリアから探す
- >
- 千代田区
- >
- 御茶ノ水・神田・秋葉原
- >
- I・T秋葉原ビル
- >
- I・T秋葉原ビル 2階
