新耐震
ITP本郷オフィス
7階(東京都文京区湯島)
新耐震
ITP本郷オフィス
7階(東京都文京区湯島)
- 賃料(坪単価):
- 475,440円(@14,000円)
- 共益費(坪単価)
- :
- 賃料に含む (@―)
- 預託金(保証金/敷金)
- :
- 3,803,520円(8ヶ月)
- 面積
- :
- 33.96坪 (112.28m²)
- 所在地
- :
- 東京都文京区湯島2-25-7
- 最寄駅
- :
-
湯島駅まで徒歩3分
上野広小路駅まで徒歩7分
上野御徒町駅まで徒歩8分
御徒町駅まで徒歩9分
末広町駅まで徒歩9分
物件情報
所在地・アクセス
- 物件名
- ITP本郷オフィス 7階
- 所在地
- 東京都文京区湯島2-25-7
- 最寄駅
-
東京メトロ千代田線 湯島駅まで徒歩3分
東京メトロ銀座線 上野広小路駅まで徒歩7分
都営大江戸線 上野御徒町駅まで徒歩8分
JR山手線 御徒町駅まで徒歩9分
東京メトロ銀座線 末広町駅まで徒歩9分
賃貸条件
- 賃料(坪単価)
- 475,440円(@14,000円)
- 礼 金
- 無
- 共益費(坪単価)
- 賃料に含む(@―)
- 面 積
- 33.96坪 (112.28m²)
- 賃料+共益費(坪単価)
- 475,440円 (@14,000円)
- 償 却
- 賃料の1ヶ月分
- 預託金(保証金/敷金)
- 3,803,520円(8ヶ月)
- 入居可能日
- 即日
- 更新料(再契約料)
- 新賃料の1ヶ月分
- 契約期間
- 2年
物件概要
- 特 徴
- 構 造
- 鉄筋コンクリート造/新耐震
- 物件タイプ
- 事務所
- 規 模
- 3階建
- 取引態様
- 一般媒介
- 竣 工
- 1985年11月(増築あり:備考参照)
- 設 備
-
E V :1基、天井高:―㎜、床仕様:―、空調:個別空調、トイレ:専用 男女別 洋式
- 備 考
-
■1989年8月、増築(増築部分⇒構造:鉄骨鉄筋コンクリート造、規模:地下1階付8階建) ■貸主指定の火災保険にご加入いただきます。 ■貸主指定の保証会社と保証委託契約を締結していただきます。
注) 上記の価格には、別途、消費税及び地方消費税が課されます。
消費税率が変更された場合には、以後、変更後の税率が課されることとなります。
物件情報更新日:2025-10-01
お気軽にお問合せください
現在募集中の区画
- 階数
- 面積
- 賃料
- 共益費
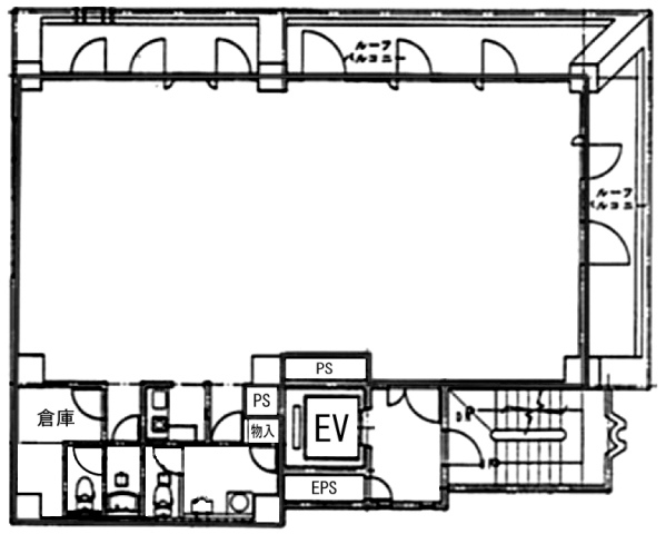
- 間取図
