印刷する

事務所

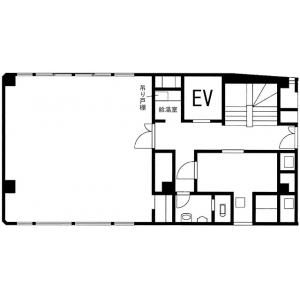
高嶋ビル 2階A室

所在地:東京都港区西新橋1-17-6

都営三田線 都営三田線 内幸町駅まで徒歩2分 JR JR山手線 新橋駅まで徒歩6分 東京メトロ銀座線 東京メトロ銀座線 新橋駅まで徒歩6分 東京メトロ銀座線 東京メトロ銀座線 虎ノ門駅まで徒歩7分 東京メトロ日比谷線 東京メトロ日比谷線 虎ノ門ヒルズ駅まで徒歩8分
区画 面積 賃料 (坪単価) 共益費 (坪単価) 賃料 + 共益費
(坪単価)
保証金 更新料
(再契約料)
償却 入居予定
敷金 礼金 契約期間
2階A室 65.21m² 285,940円(@14,500円) 59,160円(@3,000円) 345,100円 (@17,500円) 2,859,400円 新賃料の1ヶ月分 賃料の2ヶ月分 即日
19.72坪 10ヶ月 2年(定借)
  • ■ 構 造:鉄骨鉄筋コンクリート造
  • ■ E V:1基(9人乗)
  • ■ 空 調:個別空調
  • ■ 規 模:8階建
  • ■ 天井高:―㎜
  • ■ トイレ:共用  
  • ■ 竣 工:1974年2月
  • ■ 床仕様:タイルカーペット
  • ■ その他:

■室内清掃費:1,000円/坪 ■貸主指定の借家人賠償責任保険にご加入いただきます。

注) 上記の価格には、別途、消費税及び地方消費税が課されます。
消費税率が変更された場合には、以後、変更後の税率が課されることとなります。

地図はこちら