新耐震
Sobe.Japan.BLD
1棟(東京都千代田区神田佐久間町)
新耐震
Sobe.Japan.BLD
1棟(東京都千代田区神田佐久間町)
- 賃料(坪単価):
- 1,625,804円(@29,500円)
- 共益費(坪単価)
- :
- 賃料に含む (@―)
- 預託金(保証金/敷金)
- :
- 9,754,824円(6ヶ月)
- 面積
- :
- 55.112坪 (182.19m²)
- 所在地
- :
- 東京都千代田区神田佐久間町3-10
- 最寄駅
- :
-
秋葉原駅まで徒歩4分
岩本町駅まで徒歩5分
秋葉原駅まで徒歩5分
秋葉原駅まで徒歩5分
秋葉原駅まで徒歩5分
物件情報
所在地・アクセス
- 物件名
- Sobe.Japan.BLD 1棟
- 所在地
- 東京都千代田区神田佐久間町3-10
- 最寄駅
-
東京メトロ日比谷線 秋葉原駅まで徒歩4分
都営新宿線 岩本町駅まで徒歩5分
JR山手線 秋葉原駅まで徒歩5分
JR中央線 秋葉原駅まで徒歩5分
JR京浜東北線 秋葉原駅まで徒歩5分
賃貸条件
- 賃料(坪単価)
- 1,625,804円(@29,500円)
- 礼 金
- ―
- 共益費(坪単価)
- 賃料に含む(@―)
- 面 積
- 55.112坪 (182.19m²)
- 賃料+共益費(坪単価)
- 1,625,804円 (@29,500円)
- 償 却
- 賃料の2ヶ月分
- 預託金(保証金/敷金)
- 9,754,824円(6ヶ月)
- 入居可能日
- 即日
- 更新料(再契約料)
- 新賃料の1ヶ月分
- 契約期間
- 2年
物件概要
- 特 徴
- 構 造
- 鉄筋コンクリート造/新耐震
- 物件タイプ
- 事務所
- 規 模
- 5階建
- 取引態様
- 一般媒介
- 竣 工
- 2025年7月
- 設 備
-
E V :1基、天井高:備考参照㎜、床仕様:OAフロア、空調:個別空調、トイレ:専用 男女別 洋式
その他:機械警備、エントランスセキュリティ
- 備 考
-
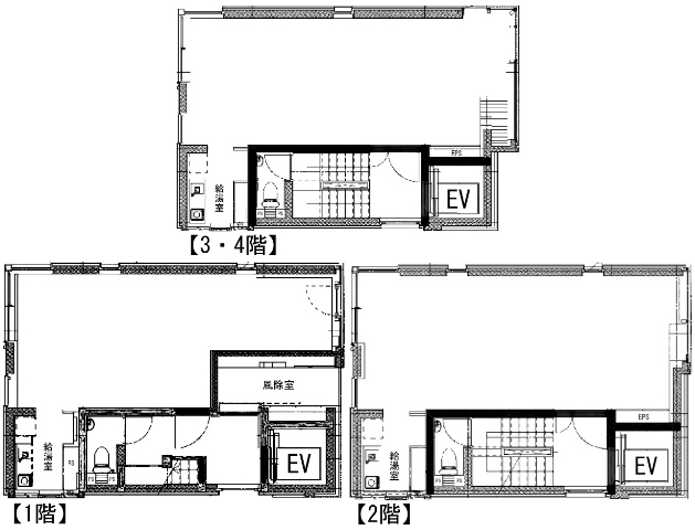
■貸室面積には、共用部の面積が含まれます。 ■電気温水洗浄器付トイレ ■貸室面積⇒1階:39.94㎡(12.082坪)、2階:45.85㎡(13.87坪)、3・4階:各48.20㎡(14.58坪) ■天井高⇒1階:3,050mm、2~4階:2,700mm ■貸主指定の火災保険にご加入いただきます。 ■貸主指定の保証会社と保証委託契約を締結していただきます。
注) 上記の価格には、別途、消費税及び地方消費税が課されます。
消費税率が変更された場合には、以後、変更後の税率が課されることとなります。
物件情報更新日:2025-09-02
お気軽にお問合せください
現在募集中の区画
- 階数
- 面積
- 賃料
- 共益費
- 間取図
- HOME
- >
- エリアから探す
- >
- 千代田区
- >
- 御茶ノ水・神田・秋葉原
- >
- Sobe.Japan.BLD
- >
- Sobe.Japan.BLD 1棟
