新耐震
三津関ビル
1階(東京都台東区西浅草)
新耐震
三津関ビル
1階(東京都台東区西浅草)
- 賃料(坪単価):
- 337,500円(@25,000円)
- 共益費(坪単価)
- :
- 無 (@―)
- 預託金(保証金/敷金)
- :
- 2,025,000円(6ヶ月)
- 面積
- :
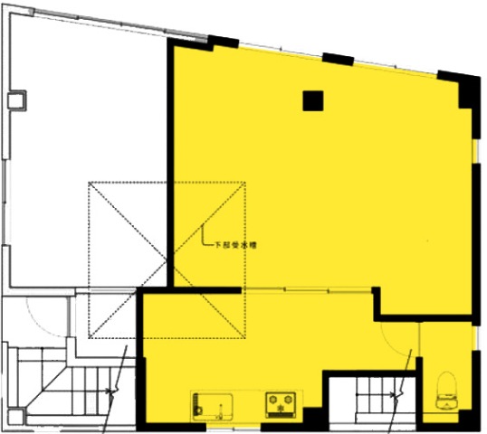
- 13.50坪 (44.75m²)
- 所在地
- :
- 東京都台東区西浅草3-10-6
- 最寄駅
- :
-
浅草駅まで徒歩4分
田原町駅まで徒歩11分
入谷駅まで徒歩11分
浅草駅まで徒歩13分
浅草駅まで徒歩14分
物件情報
所在地・アクセス
- 物件名
- 三津関ビル 1階
- 所在地
- 東京都台東区西浅草3-10-6
- 最寄駅
-
つくばエクスプレス 浅草駅まで徒歩4分
東京メトロ銀座線 田原町駅まで徒歩11分
東京メトロ日比谷線 入谷駅まで徒歩11分
東武伊勢崎線 浅草駅まで徒歩13分
都営浅草線 浅草駅まで徒歩14分
賃貸条件
- 賃料(坪単価)
- 337,500円(@25,000円)
- 礼 金
- 賃料の2ヶ月分
- 共益費(坪単価)
- 無(@―)
- 面 積
- 13.50坪 (44.75m²)
- 賃料+共益費(坪単価)
- 337,500円 (@25,000円)
- 償 却
- 保証金の20%
- 預託金(保証金/敷金)
- 2,025,000円(6ヶ月)
- 入居可能日
- 相談
- 更新料(再契約料)
- 新賃料の1ヶ月分
- 契約期間
- 9年(定借)
物件概要
- 特 徴
- 構 造
- 鉄骨造/新耐震
- 物件タイプ
- 店舗・事務所
- 規 模
- 4階建
- 取引態様
- 一般媒介
- 竣 工
- 1994年5月
- 設 備
-
天井高:―㎜、床仕様:―、空調:―、トイレ: 男女共用 洋式
- 備 考
-
■重飲食店舗不可 ■3年毎に中途礼金あり ■貸主指定の保証会社と保証委託契約を締結していただきます。 ※図面着色部分が募集区画となりますが、契約面積と相違する可能性があることを予めご了承ください。
注) 上記の価格には、別途、消費税及び地方消費税が課されます。
消費税率が変更された場合には、以後、変更後の税率が課されることとなります。
物件情報更新日:2025-09-30
お気軽にお問合せください
