新耐震基準適合
日本生命新橋ビル
8階(東京都港区新橋)
新耐震基準適合
日本生命新橋ビル
8階(東京都港区新橋)
- 賃料(坪単価):
- 相談(@―)
- 共益費(坪単価)
- :
- 相談 (@―)
- 預託金(保証金/敷金)
- :
- 相談(―)
- 面積
- :
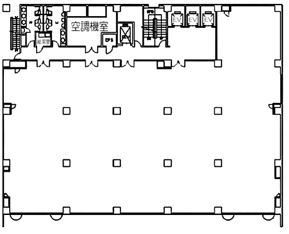
- 158.00坪 (520.80m²)
- 所在地
- :
- 東京都港区新橋1-18-16
- 最寄駅
- :
-
内幸町駅まで徒歩1分
新橋駅まで徒歩3分
新橋駅まで徒歩3分
新橋駅まで徒歩3分
新橋駅まで徒歩3分
物件情報
所在地・アクセス
- 物件名
- 日本生命新橋ビル 8階
- 所在地
- 東京都港区新橋1-18-16
- 最寄駅
-
都営三田線 内幸町駅まで徒歩1分
JR山手線 新橋駅まで徒歩3分
東京メトロ銀座線 新橋駅まで徒歩3分
JR京浜東北線 新橋駅まで徒歩3分
都営浅草線 新橋駅まで徒歩3分
賃貸条件
- 賃料(坪単価)
- 相談(@―)
- 礼 金
- 相談
- 共益費(坪単価)
- 相談(@―)
- 面 積
- 158.00坪 (520.80m²)
- 賃料+共益費(坪単価)
- 相談 (@―)
- 償 却
- 相談
- 預託金(保証金/敷金)
- 相談(―)
- 入居可能日
- 相談
- 更新料(再契約料)
- 相談
- 契約期間
- 相談
物件概要
物件情報更新日:2026-01-09
お気軽にお問合せください
現在募集中の区画
- 階数
- 面積
- 賃料
- 共益費
- 間取図
