印刷する

事務所

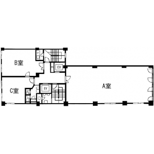
清話会ビル 6階A室

所在地:東京都千代田区神田三崎町3-7-12

JR JR中央線 水道橋駅まで徒歩1分 都営三田線 都営三田線 水道橋駅まで徒歩7分 東京メトロ東西線 東京メトロ東西線 飯田橋駅まで徒歩8分 東京メトロ南北線 東京メトロ南北線 飯田橋駅まで徒歩8分 東京メトロ有楽町線 東京メトロ有楽町線 飯田橋駅まで徒歩8分
区画 面積 賃料 (坪単価) 共益費 (坪単価) 賃料 + 共益費
(坪単価)
保証金 更新料
(再契約料)
償却 入居予定
敷金 礼金 契約期間
6階A室 166.28m² 704,200円(@14,000円) 賃料に含む(@―) 704,200円 (@14,000円) 5,633,600円 新賃料の1ヶ月分 賃料の1ヶ月分 2026年4月中旬予定
50.30坪 8ヶ月 2年(定借)
  • ■ 構 造:鉄骨鉄筋コンクリート造
  • ■ E V:2基
  • ■ 空 調:個別空調
  • ■ 規 模:7階建
  • ■ 天井高:―㎜
  • ■ トイレ:共用 男女別 洋式
  • ■ 竣 工:1979年10月
  • ■ 床仕様:タイルカーペット
  • ■ その他:

■解約予告:3ヶ月前 ■貸主指定の保証会社と保証委託契約を締結していただきます。

注) 上記の価格には、別途、消費税及び地方消費税が課されます。
消費税率が変更された場合には、以後、変更後の税率が課されることとなります。

地図はこちら