印刷する

事務所

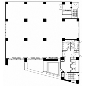
丸柏タマビル 2階

所在地:東京都中央区日本橋本町1-6-1

JR JR総武線快速 新日本橋駅まで徒歩4分 東京メトロ銀座線 東京メトロ銀座線 三越前駅まで徒歩5分 東京メトロ半蔵門線 東京メトロ半蔵門線 三越前駅まで徒歩5分 都営浅草線 都営浅草線 人形町駅まで徒歩7分 東京メトロ東西線 東京メトロ東西線 日本橋駅まで徒歩8分
区画 面積 賃料 (坪単価) 共益費 (坪単価) 賃料 + 共益費
(坪単価)
保証金 更新料
(再契約料)
償却 入居予定
敷金 礼金 契約期間
2階 528.30m² 2,317,245円(@14,500円) 559,335円(@3,500円) 2,876,580円 (@18,000円) 27,806,940円 新賃料の1ヶ月分 賃料の2ヶ月分 2026年8月1日予定
159.81坪 12ヶ月 3年(定借)
  • ■ 構 造:鉄骨鉄筋コンクリート造/新耐震基準適合
  • ■ E V:2基(15人乗)
  • ■ 空 調:セントラル
  • ■ 規 模:地下2階付10階建
  • ■ 天井高:2,350mm(下がり天井2,050mm)㎜
  • ■ トイレ:専用 男女別 洋式
  • ■ 竣 工:1974年6月
  • ■ 床仕様:一部OAフロア
  • ■ その他:
    • ・駐車場設備あり

■2013年12月、耐震補強工事済  ■中途解約可能 ■貸室面積には、EVホール・水回り等の面積が含まれます。  ■床荷重:300㎏/㎡  ■電灯容量:250A     ■共益費には、空調費が含まれます。 ■セントラル空調コアタイム:平日7:00~19:00、土日祝休止 ※時間外空調費:4,000円/時間     ■エントランス開放時間:平日7:00~19:00、土日祝Close ※左記時間帯以外は通用口より入退館可能

注) 上記の価格には、別途、消費税及び地方消費税が課されます。
消費税率が変更された場合には、以後、変更後の税率が課されることとなります。

地図はこちら