当社管理物件
居抜物件
キャンペーン実施中
新耐震
THE GATE UENO
3階(東京都台東区東上野)
当社管理物件
居抜物件
キャンペーン実施中
新耐震
THE GATE UENO
3階(東京都台東区東上野)
- 賃料(坪単価):
- 877,710円(@17,000円)
- 共益費(坪単価)
- :
- 賃料に含む (@―)
- 預託金(保証金/敷金)
- :
- ―(相談)
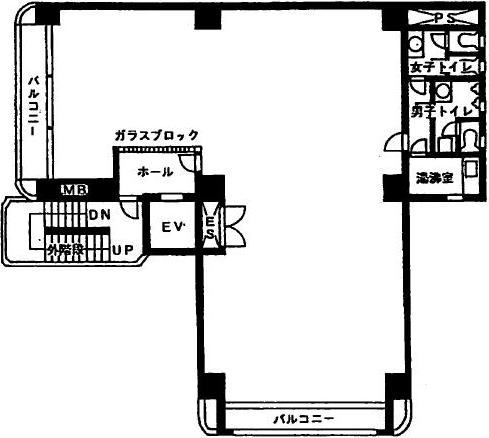
- 面積
- :
- 51.63坪 (170.71m²)
- 所在地
- :
- 東京都台東区東上野1-12-2
- 最寄駅
- :
-
仲御徒町駅まで徒歩2分
上野御徒町駅まで徒歩2分
上野広小路駅まで徒歩2分
御徒町駅まで徒歩4分
新御徒町駅まで徒歩4分
物件情報
所在地・アクセス
- 物件名
- THE GATE UENO 3階
- 所在地
- 東京都台東区東上野1-12-2
- 最寄駅
-
東京メトロ日比谷線 仲御徒町駅まで徒歩2分
都営大江戸線 上野御徒町駅まで徒歩2分
東京メトロ銀座線 上野広小路駅まで徒歩2分
JR山手線 御徒町駅まで徒歩4分
つくばエクスプレス 新御徒町駅まで徒歩4分
賃貸条件
- 賃料(坪単価)
- 877,710円(@17,000円)
- 礼 金
- 無
- 共益費(坪単価)
- 賃料に含む(@―)
- 面 積
- 51.63坪 (170.71m²)
- 賃料+共益費(坪単価)
- 877,710円 (@17,000円)
- 償 却
- 無
- 預託金(保証金/敷金)
- ―(相談)
- 入居可能日
- 2026年2月上旬予定
- 更新料(再契約料)
- ―
- 契約期間
- 3年(定借)
物件概要
- 特 徴
- 構 造
- 鉄骨鉄筋コンクリート造/新耐震
- 物件タイプ
- 事務所
- 規 模
- 地下1階付9階建
- 取引態様
- 一般媒介
- 竣 工
- 1987年1月
- 設 備
-
E V :1基(9人乗)、天井高:―㎜、床仕様:OAフロア、空調:個別空調、トイレ:専用 男女別 洋式
その他:機械警備、EV不停止機能付、駐車場設備あり
- 備 考
-
■2018年3月、エントランス・共用部等リニューアル工事実施済 ■貸室面積には、EVホール・トイレ・給湯室等の面積が含まれます。 ■貸主指定の保証会社(ナップ賃貸保証)と保証委託契約を締結していただきます。 ※与信状況によって敷金の預託をお願いする場合がございます。
注) 上記の価格には、別途、消費税及び地方消費税が課されます。
消費税率が変更された場合には、以後、変更後の税率が課されることとなります。
物件情報更新日:2025-12-03
お気軽にお問合せください
キャンペーン実施中。詳細はお問合せ下さい。
この物件のお問合せ現在募集中の区画
- 階数
- 面積
- 賃料
- 共益費
- 間取図
