新耐震基準適合
五反田PLACE
2階(東京都品川区西五反田)
新耐震基準適合
五反田PLACE
2階(東京都品川区西五反田)
- 賃料(坪単価):
- 相談(@―)
- 共益費(坪単価)
- :
- 賃料に含む (@―)
- 預託金(保証金/敷金)
- :
- ―(相談)
- 面積
- :
- 150.70坪 (498.21m²)
- 所在地
- :
- 東京都品川区西五反田1-3-8
- 最寄駅
- :
-
五反田駅まで徒歩2分
五反田駅まで徒歩2分
大崎広小路駅まで徒歩6分
大崎駅まで徒歩11分
不動前駅まで徒歩12分
物件情報
所在地・アクセス
- 物件名
- 五反田PLACE 2階
- 所在地
- 東京都品川区西五反田1-3-8
- 最寄駅
-
都営浅草線 五反田駅まで徒歩2分
JR山手線 五反田駅まで徒歩2分
東急池上線 大崎広小路駅まで徒歩6分
JR埼京線 大崎駅まで徒歩11分
東急目黒線 不動前駅まで徒歩12分
賃貸条件
- 賃料(坪単価)
- 相談(@―)
- 礼 金
- 無
- 共益費(坪単価)
- 賃料に含む(@―)
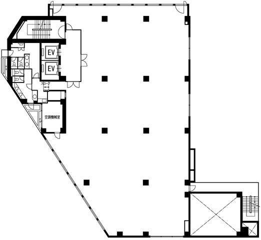
- 面 積
- 150.70坪 (498.21m²)
- 賃料+共益費(坪単価)
- 相談 (@―)
- 償 却
- 無
- 預託金(保証金/敷金)
- ―(相談)
- 入居可能日
- 即日
- 更新料(再契約料)
- 無
- 契約期間
- 年相談(定借)
物件概要
- 特 徴
- 構 造
- 鉄骨鉄筋コンクリート造/新耐震基準適合
- 物件タイプ
- 事務所
- 規 模
- 地下1階付10階建
- 取引態様
- 一般媒介
- 竣 工
- 1974年2月
- 設 備
-
E V :2基(15人乗)、天井高:2350㎜、床仕様:OAフロア(H=50mm)、空調:セントラル、トイレ:共用 男女別 洋式
その他:機械警備、駐車場設備あり
- 備 考
-
■1998年、耐震補強工事実施済 ■貸室面積には、EVホール・廊下・トイレ等の面積は含まれません。 ■床荷重:300㎏/㎡ ■電気容量:50VA/㎡ ■セントラル空調コアタイム:8:00~18:00(10~6月)、8:00~19:00(7~9月) ※時間外空調料(土日祝含む):2,000円/時間 ■エントランス開放時間:平日7:00~19:00、土曜8:00~18:30、日祝9:00~18:30 ※左記時間帯以外は通用口よりカードキー利用にて入退館可能
注) 上記の価格には、別途、消費税及び地方消費税が課されます。
消費税率が変更された場合には、以後、変更後の税率が課されることとなります。
物件情報更新日:2026-01-29
お気軽にお問合せください
