印刷する

事務所

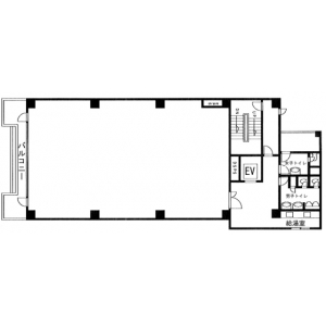
VORT半蔵門Ⅱ 2階

所在地:東京都千代田区麹町2-2-3

東京メトロ半蔵門線 東京メトロ半蔵門線 半蔵門駅まで徒歩1分 東京メトロ有楽町線 東京メトロ有楽町線 麹町駅まで徒歩5分 東京メトロ半蔵門線 東京メトロ半蔵門線 永田町駅まで徒歩11分 東京メトロ南北線 東京メトロ南北線 永田町駅まで徒歩11分 東京メトロ有楽町線 東京メトロ有楽町線 永田町駅まで徒歩11分
区画 面積 賃料 (坪単価) 共益費 (坪単価) 賃料 + 共益費
(坪単価)
保証金 更新料
(再契約料)
償却 入居予定
敷金 礼金 契約期間
2階 219.36m² 相談(@―) 相談(@―) 相談 (@―) 相談 相談 相談 相談
66.35坪 相談 相談
  • ■ 構 造:鉄骨鉄筋コンクリート造/新耐震
  • ■ E V:1基
  • ■ 空 調:個別空調
  • ■ 規 模:9階建
  • ■ 天井高:―㎜
  • ■ トイレ: 男女別 洋式
  • ■ 竣 工:1988年6月
  • ■ 床仕様:OAフロア
  • ■ その他:
    • ・機械警備
お問い合わせください。
地図はこちら