当社管理物件
新耐震
北の丸グラスゲート
7階(東京都千代田区九段北)
当社管理物件
新耐震
北の丸グラスゲート
7階(東京都千代田区九段北)
- 賃料(坪単価):
- 996,030円(@17,000円)
- 共益費(坪単価)
- :
- 賃料に含む (@―)
- 預託金(保証金/敷金)
- :
- 5,976,180円(6ヶ月)
- 面積
- :
- 58.59坪 (193.69m²)
- 所在地
- :
- 東京都千代田区九段北1-4-5
- 最寄駅
- :
-
九段下駅まで徒歩1分
九段下駅まで徒歩2分
九段下駅まで徒歩2分
神保町駅まで徒歩7分
神保町駅まで徒歩7分
スタッフコメント
東京メトロ東西線【九段下駅】から徒歩1分、東京メトロ半蔵門線・都営新宿線【九段下駅】から徒歩2分という、非常に利便性の高い立地にある当物件。周辺には銀行、郵便局、コンビニ、飲食店が多数点在しており、ビジネスに必要な機能が徒歩圏内に揃っています。また、皇居や北の丸公園など、緑豊かな環境も近く、働く人々にとって快適で落ち着いた職場環境を提供します。都心でありながら静けさと利便性を兼ね備えた、企業活動に最適なロケーションです。2012年に、エントランスのリニューアル工事を実施。来客時の簡単な打ち合わせにも対応できるよう、イスと机を設置しました。さらに、7階には自動販売機を備えた館内テナント専用のグリーンテラスを設けており、喫煙も可能なため、リフレッシュの場としても最適です。是非一度ご内覧ください。
担当:並木 麻由美 支店:麹町店 更新日:2026年1月10日
物件情報
所在地・アクセス
- 物件名
- 北の丸グラスゲート 7階
- 所在地
- 東京都千代田区九段北1-4-5
- 最寄駅
-
東京メトロ東西線 九段下駅まで徒歩1分
東京メトロ半蔵門線 九段下駅まで徒歩2分
都営新宿線 九段下駅まで徒歩2分
都営三田線 神保町駅まで徒歩7分
都営新宿線 神保町駅まで徒歩7分
賃貸条件
- 賃料(坪単価)
- 996,030円(@17,000円)
- 礼 金
- 無
- 共益費(坪単価)
- 賃料に含む(@―)
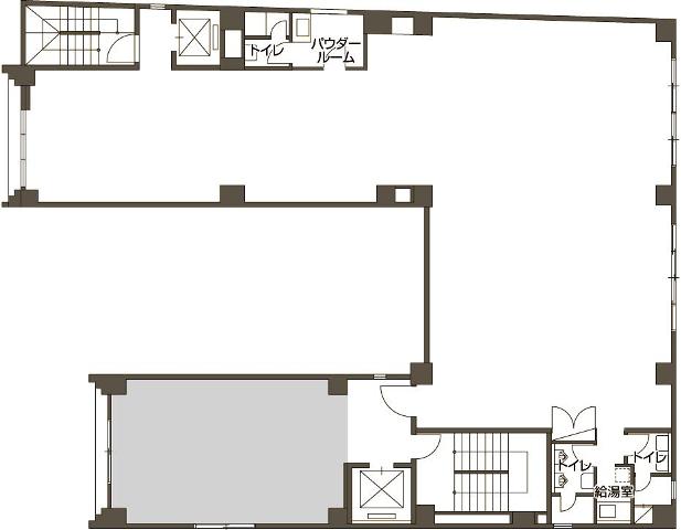
- 面 積
- 58.59坪 (193.69m²)
- 賃料+共益費(坪単価)
- 996,030円 (@17,000円)
- 償 却
- 無
- 預託金(保証金/敷金)
- 5,976,180円(6ヶ月)
- 入居可能日
- 即日
- 更新料(再契約料)
- 無
- 契約期間
- 2年
物件概要
- 特 徴
- 構 造
- SRC造・RC造/新耐震
- 物件タイプ
- 事務所
- 規 模
- 9階建
- 取引態様
- 一般媒介
- 竣 工
- 1986年4月
- 設 備
-
E V :2基(うち1基の着床:1~8階)、天井高:―㎜、床仕様:―、空調:個別空調、トイレ:専用 男女別 洋式
その他:機械警備
- 備 考
-
■7階に入居テナント様専用グリーンテラスがございます。(喫煙可能) ■SFビルサポート株式会社と保証委託契約を締結していただきます。 ※与信状況によって預託金額が変動する場合がございます。
注) 上記の価格には、別途、消費税及び地方消費税が課されます。
消費税率が変更された場合には、以後、変更後の税率が課されることとなります。
物件情報更新日:2026-01-09
お気軽にお問合せください
