印刷する

事務所

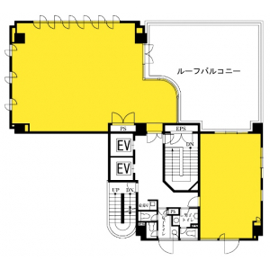
VORT芝浦WaterFront 7階

所在地:東京都港区芝浦4-12-31

JR JR山手線 田町駅まで徒歩11分 JR JR京浜東北線 田町駅まで徒歩11分 都営三田線 都営三田線 三田駅まで徒歩15分 都営浅草線 都営浅草線 三田駅まで徒歩15分 ゆりかもめ ゆりかもめ 芝浦ふ頭駅まで徒歩15分
区画 面積 賃料 (坪単価) 共益費 (坪単価) 賃料 + 共益費
(坪単価)
保証金 更新料
(再契約料)
償却 入居予定
敷金 礼金 契約期間
7階 173.40m² 相談(@―) 相談(@―) 相談 (@―) 相談 相談 相談 相談
52.45坪 相談 相談
  • ■ 構 造:SRC造・RC造/新耐震
  • ■ E V:2基
  • ■ 空 調:個別空調
  • ■ 規 模:地下1階付7階建
  • ■ 天井高:―㎜
  • ■ トイレ:専用 男女別 洋式
  • ■ 竣 工:1989年2月
  • ■ 床仕様:OAフロア
  • ■ その他:
    • ・機械警備
お問い合わせください。
地図はこちら