新耐震
NMF五反田駅前ビル
6階(東京都品川区西五反田)
新耐震
NMF五反田駅前ビル
6階(東京都品川区西五反田)
- 賃料(坪単価):
- 相談(@―)
- 共益費(坪単価)
- :
- 相談 (@―)
- 預託金(保証金/敷金)
- :
- 相談(―)
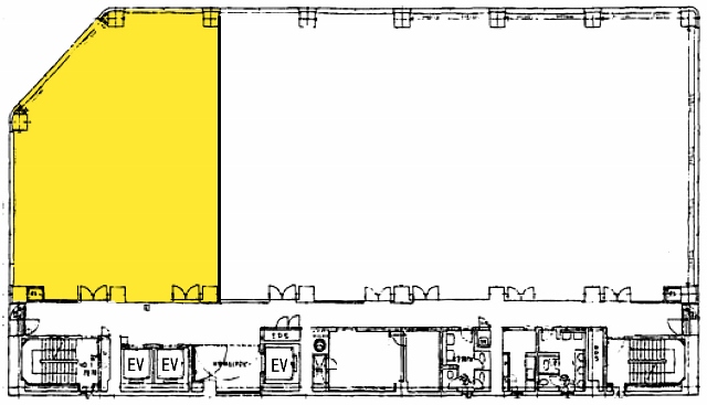
- 面積
- :
- 58.03坪 (191.83m²)
- 所在地
- :
- 東京都品川区西五反田1-1-8
- 最寄駅
- :
-
五反田駅まで徒歩1分
五反田駅まで徒歩1分
五反田駅まで徒歩2分
大崎広小路駅まで徒歩6分
大崎駅まで徒歩12分
物件情報
所在地・アクセス
- 物件名
- NMF五反田駅前ビル 6階
- 所在地
- 東京都品川区西五反田1-1-8
- 最寄駅
-
JR山手線 五反田駅まで徒歩1分
都営浅草線 五反田駅まで徒歩1分
東急池上線 五反田駅まで徒歩2分
東急池上線 大崎広小路駅まで徒歩6分
JR山手線 大崎駅まで徒歩12分
賃貸条件
- 賃料(坪単価)
- 相談(@―)
- 礼 金
- 相談
- 共益費(坪単価)
- 相談(@―)
- 面 積
- 58.03坪 (191.83m²)
- 賃料+共益費(坪単価)
- 相談 (@―)
- 償 却
- 相談
- 預託金(保証金/敷金)
- 相談(―)
- 入居可能日
- 相談
- 更新料(再契約料)
- 相談
- 契約期間
- 相談
物件概要
物件情報更新日:2025-09-25
お気軽にお問合せください
- HOME
- >
- エリアから探す
- >
- 品川区
- >
- 品川・大崎・五反田
- >
- NMF五反田駅前ビル
- >
- NMF五反田駅前ビル 6階
