新耐震
三田三好ビル
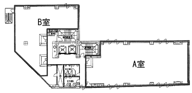
7階A室(東京都港区三田)
新耐震
三田三好ビル
7階A室(東京都港区三田)
- 賃料(坪単価):
- 1,181,670円(@17,000円)
- 共益費(坪単価)
- :
- 賃料に含む (@―)
- 預託金(保証金/敷金)
- :
- 14,180,040円(12ヶ月)
- 面積
- :
- 69.51坪 (229.79m²)
- 所在地
- :
- 東京都港区三田3-9-7
- 最寄駅
- :
-
泉岳寺駅まで徒歩3分
泉岳寺駅まで徒歩3分
田町駅まで徒歩10分
白金高輪駅まで徒歩14分
白金高輪駅まで徒歩14分
物件情報
所在地・アクセス
- 物件名
- 三田三好ビル 7階A室
- 所在地
- 東京都港区三田3-9-7
- 最寄駅
-
都営浅草線 泉岳寺駅まで徒歩3分
京急本線 泉岳寺駅まで徒歩3分
JR山手線 田町駅まで徒歩10分
東京メトロ南北線 白金高輪駅まで徒歩14分
都営三田線 白金高輪駅まで徒歩14分
賃貸条件
- 賃料(坪単価)
- 1,181,670円(@17,000円)
- 礼 金
- 無
- 共益費(坪単価)
- 賃料に含む(@―)
- 面 積
- 69.51坪 (229.79m²)
- 賃料+共益費(坪単価)
- 1,181,670円 (@17,000円)
- 償 却
- 無
- 預託金(保証金/敷金)
- 14,180,040円(12ヶ月)
- 入居可能日
- 2026年2月1日予定
- 更新料(再契約料)
- 無
- 契約期間
- 2年
物件概要
- 特 徴
- 構 造
- 鉄骨鉄筋コンクリート造/新耐震
- 物件タイプ
- 事務所
- 規 模
- 地下2階付8階建
- 取引態様
- 一般媒介
- 竣 工
- 1985年1月
- 設 備
-
E V :2基(15人乗・13人乗)、天井高:2430㎜、床仕様:OAフロア(H=50mm)、空調:個別空調、トイレ:共用 男女別 洋式
その他:機械警備、有人警備、駐車場設備あり
- 備 考
-
■2008年3月、大規模リニューアル実施済 ■2013年、EV内装リニューアル実施済 ■貸室面積には、トイレ・給湯室・PS等の面積は含まれません。 ■床荷重:300㎏/㎡ ■電気容量:70VA/㎡ ■机上平均照度:700Lx ■エントランス開放時間:平日8:00~19:00 ※左記時間帯以外はセキュリティカード利用にて通用口より入退館可能
注) 上記の価格には、別途、消費税及び地方消費税が課されます。
消費税率が変更された場合には、以後、変更後の税率が課されることとなります。
物件情報更新日:2026-01-06
お気軽にお問合せください
現在募集中の区画
- 階数
- 面積
- 賃料
- 共益費
- 間取図
