
江戸城のお膝元として多くの大名が屋敷を構えていた、由緒正しき街「平河町」。日本の政治の中心地「永田町」に近接するこの地に、セットアップオフィスが誕生します。【永田町駅・赤坂見附駅】をはじめとした、5駅6路線が利用可能。名立たる主要エリアにダイレクトにアクセスできる、トップクラスの利便性。石造調の佇まいは高級感を演出すると共に、南側に大きく開けた窓面は明るい空間を実現いたします。気品あるエントランスは、ご来訪者様に安らぎと信頼感をもたらします。会議室は2ヶ所、共に「和」を基調とした落ち着いた内装に仕上げる予定です。屋上には入居者様皆様がご利用いただけるルーフガーデンがございます。都市と緑を望む眺望をお楽しみ下さい。
※掲載写真とお引渡し状態が異なる場合は現況を優先させていただきます。
OVERVIEW
- 物件No.
- 1-1143
- 募集期間
- ご成約まで
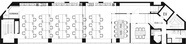
- 所在地
- 千代田区平河町
- 最寄駅
-
東京メトロ南北線
永田町駅 徒歩2分
東京メトロ半蔵門線
半蔵門駅 徒歩7分
東京メトロ銀座線
赤坂見附駅 徒歩7分
- 面積
- 59.48坪 / 196.64㎡
- 会議室
- 6名用会議室×1
8名用会議室×1
- 推奨人数
- 25~30人
- 構造
- 鉄骨鉄筋コンクリート造
- 規模
- 地下1階付8階建
- 施工
- 1982年
- エレベーター
- 1基(9人乗)
- 天井の高さ
- 2,500mm
- 空調
- 個別空調
- トイレ
- 室内専用 男女別 洋式
- 床使用
- OAフロア(H=50mm)
- 賃料
- 1,249,080円
- 共益費
- 賃料に含む
- 預託金
- 賃料の6ヶ月分
- 契約期間
- 2年
- 引き渡し時期
- 2025年11月17日予定
- その他
- 更新料:無/ 償却:無/ 礼金:無/ 契約形態:普通賃貸借契約/ その他:契約の際には、SFビルサポート株式会社と保証委託契約を締結していただきます。※与信状況によって預託金額が変動する場合がございます。/
現在オンライン内覧が可能です
オンライン内覧について詳しくはこちら
CHECK IT!
この物件についてもっと詳しく
そのまんまオフィス会員
3つのメリット
-

物件の
詳細情報の公開 -

新着物件を
お知らせ -

未公開物件を
ご紹介














