
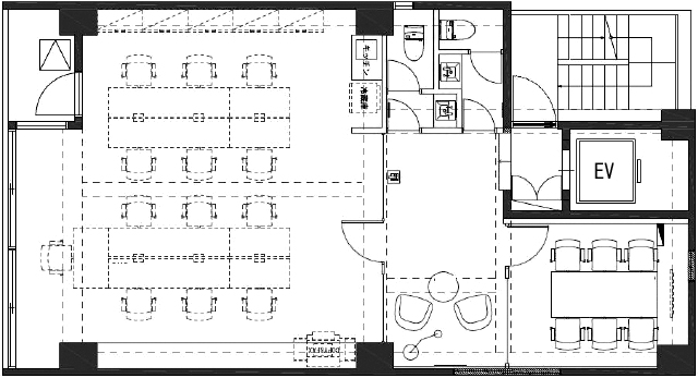
中央区築地に会議室・バルコニー付きセットアップオフィスが登場しました!東京メトロ日比谷線【築地駅】、有楽町線【新富町駅】までともに徒歩2分の立地に所在しており、【東京駅】へも徒歩圏内と利便性にも優れています。エントランスは高級感を感じさせるアプローチ、落ち着きと品格のある空間となっております。貸室内はガラスパーテーションの機能的な会議室付き、大きな窓面の開放感溢れる魅力的なオフィスとなっております。一度ご覧いただけたら気に入っていただけるかと思います♪是非一度ご覧くださいませ!
※掲載写真とお引渡し状態が異なる場合がございます。その場合は現況を優先させていただきます。
※レイアウトはイメージとなります。執務室に什器はございません。
OVERVIEW
- 物件No.
- 1-1183
- 募集期間
- ご成約まで
- 所在地
- 中央区築地
- 最寄駅
-
東京メトロ日比谷線
築地駅 徒歩2分
東京メトロ有楽町線
新富町駅 徒歩2分
東京メトロ日比谷線
東銀座駅 徒歩9分
- 面積
- 25.47坪 / 84.2㎡
- 会議室
- 6名掛け会議室×1
- 推奨人数
- 10~12人
- 構造
- 鉄骨鉄筋コンクリート造
- 規模
- 地下1階付9階建
- 施工
- 1992年
- エレベーター
- 1基(6人乗)
- 天井の高さ
- ―
- 空調
- 個別空調
- トイレ
- 専用 男女別 洋式
- 床使用
- OAフロア
- 賃料
- ご相談
- 共益費
- ご相談
- 預託金
- 賃料の12ヶ月分
- 契約期間
- 2年
- 引き渡し時期
- 2025年7月17日予定
- その他
- 更新料:無/ 償却:無/ 礼金:無/ 契約形態:普通賃貸借契約/
現在オンライン内覧が可能です
オンライン内覧について詳しくはこちら
CHECK IT!
この物件についてもっと詳しく
そのまんまオフィス会員
3つのメリット
-

物件の
詳細情報の公開 -

新着物件を
お知らせ -

未公開物件を
ご紹介
















