
当ビルは、1階に入居者様専用ラウンジがございます。ラウンジにはカウンター・ファミレスブース・テレカンブースがあり、お客様との打ち合わせやWebミーティング等シチュエーションにより使い分けることが可能です!!
また、オフィスグリコ(グリコ商品の販売スペース)も導入しており、リフレッシュスペースとしてもご活用いただけます。時には1階ラウンジを利用することで、新しいアイディアを発見してみては如何でしょうか。
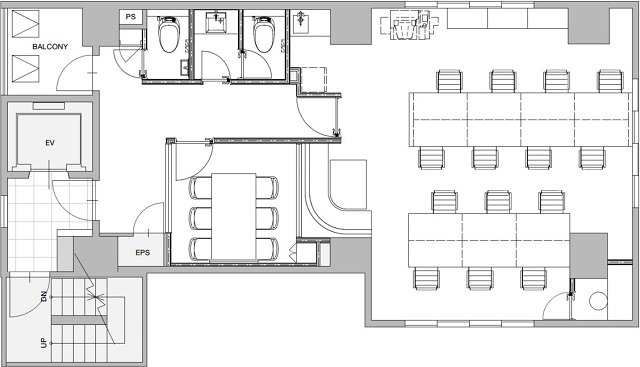
偶数階については、貸室内にファミレスブースがあり、複数人でのミーティングや他支店・リモートワークの方が一時的に出社された場合のデスクとしてもご活用いただけます。
全フロア・オフィス什器付きのセットアップオフィスとなっており、造作壁や什器に木材を使用することで、温かみのある雰囲気を演出しています。これにより、働く方々にとって落ち着いた空間を提供し、より良いパフォーマンスを引き出すことが期待できます。さらに、原状回復義務なし(※現状変更した場合や破損等は除く)、敷金ゼロ(預託金なし)も相談可能となっており、入居時の初期費用圧縮や退去時の手間やコストを大幅に削減することが可能です。
photographer:星野 佑
OVERVIEW
- 物件No.
- 2-3200
- 募集期間
- ご成約まで
- 所在地
- 中央区日本橋小網町
- 最寄駅
-
東京メトロ半蔵門線
水天宮前駅 徒歩5分
東京メトロ日比谷線
人形町駅 徒歩5分
東京メトロ東西線
茅場町駅 徒歩5分
- 面積
- 28.54坪 / 94.35㎡
- 会議室
- 6名掛け会議室×1
- 推奨人数
- 10~15人
- 構造
- 鉄筋コンクリート造
- 規模
- 10階建
- 施工
- 2024年
- エレベーター
- 1基(6人乗)
- 天井の高さ
- ―
- 空調
- 個別空調
- トイレ
- 専用 男女別 洋式
- 床使用
- OAフロア
- 賃料
- 740,000円
- 共益費
- 賃料に含む
- 預託金
- 無
- 契約期間
- 2年
- 引き渡し時期
- 即日
- その他
- 更新料:無/ 償却:無/ 礼金:無/ 契約形態:普通賃貸借契約/ その他:契約開始より12ヶ月間解約不可(12ヶ月間以内解約の場合、違約金が発生いたします)/原状回復義務なし(現状変更した場合や破損等を除く)/クリーニング費用をご負担いただきます(契約時)/貸主指定の清掃会社と貸室内の清掃契約を締結していただきます。/契約の際には、貸主指定の保証会社と保証委託契約を締結していただきます。※与信状況によって預託をお願いする場合がございます。/
360°CAMERA
現在オンライン内覧が可能です
オンライン内覧について詳しくはこちら
CHECK IT!
この物件についてもっと詳しく
そのまんまオフィス会員
3つのメリット
-

物件の
詳細情報の公開 -

新着物件を
お知らせ -

未公開物件を
ご紹介


















