
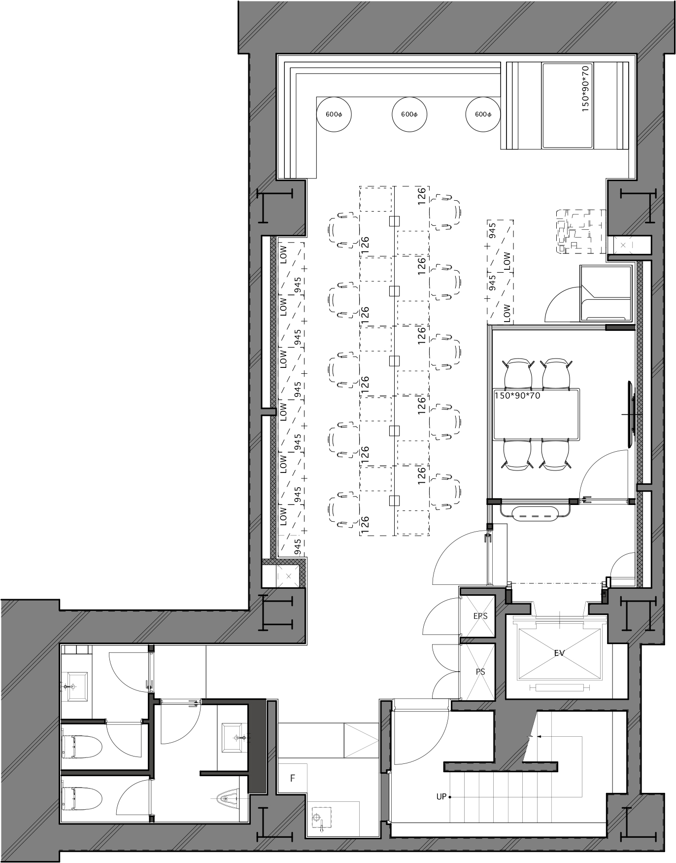
金融・証券の街として発展を続けてきた「日本橋茅場町」は、東京証券取引所をはじめとした証券会社各社や多数の上場企業本社等、多くのビジネスマンで賑わう街です。そんな茅場町の駅前に、敷金無し※1・原状回復無し※2・執務室什器やWiFi機器設置済みのセットアップオフィスが誕生!L字型の貸室形状を生かした内装レイアウトで、エレベーターを降りると広々としたラウンジスペースが広がります。執務室内には10名分の什器を設置済み、またテレカンブースも1室備えています。執務室の奥には、社内打ち合わせや集中作業など様々な使い方のできるファミレスソファや、憩いの場となるソファスペースもがございます!またガラス張りの4名用会議室が設置されております。ぜひ現地ご内覧にお越しください!
※1 与信状況によって預託をお願いする場合がございます。
※2 現状変更した場合や破損等を除きます。
※掲載中の画像はイメージCGとなります。お引渡し状態が異なる場合、現況を優先させていただきます。
OVERVIEW
- 物件No.
- 2-3271
- 募集期間
- ご成約まで
- 所在地
- 中央区日本橋茅場町
- 最寄駅
-
東京メトロ日比谷線
茅場町駅 徒歩1分
東京メトロ東西線
茅場町駅 徒歩1分
東京メトロ銀座線
日本橋駅 徒歩4分
- 面積
- 27.77坪 / 91.81㎡
- 会議室
- 4名掛け会議室×1
- 推奨人数
- 10~15人
- 構造
- 鉄骨鉄筋コンクリート造
- 規模
- 地下1階付10階建
- 施工
- 1985年
- エレベーター
- 1基(6人乗)
- 天井の高さ
- -
- 空調
- 個別空調
- トイレ
- 専用 男女別 洋式
- 床使用
- OAフロア
- 賃料
- 527,630円
- 共益費
- 賃料に含む
- 預託金
- 無
- 契約期間
- 2年
- 引き渡し時期
- 即日
- その他
- 更新料:無/ 償却:無/ 礼金:無/ 契約形態:普通賃貸借契約/ その他:契約開始より12ヶ月間解約不可(12ヶ月間以内解約の場合、違約金が発生いたします)/原状回復義務なし(現状変更した場合や破損等を除く)/クリーニング費用をご負担いただきます(入居時)/貸主指定の清掃会社と貸室内の清掃契約を締結していただきます。/契約の際には、SFビルサポート株式会社会社と保証委託契約を締結していただきます。※与信状況によって預託をお願いする場合がございます。/
現在オンライン内覧が可能です
オンライン内覧について詳しくはこちら
CHECK IT!
この物件についてもっと詳しく
そのまんまオフィス会員
3つのメリット
-

物件の
詳細情報の公開 -

新着物件を
お知らせ -

未公開物件を
ご紹介
















