
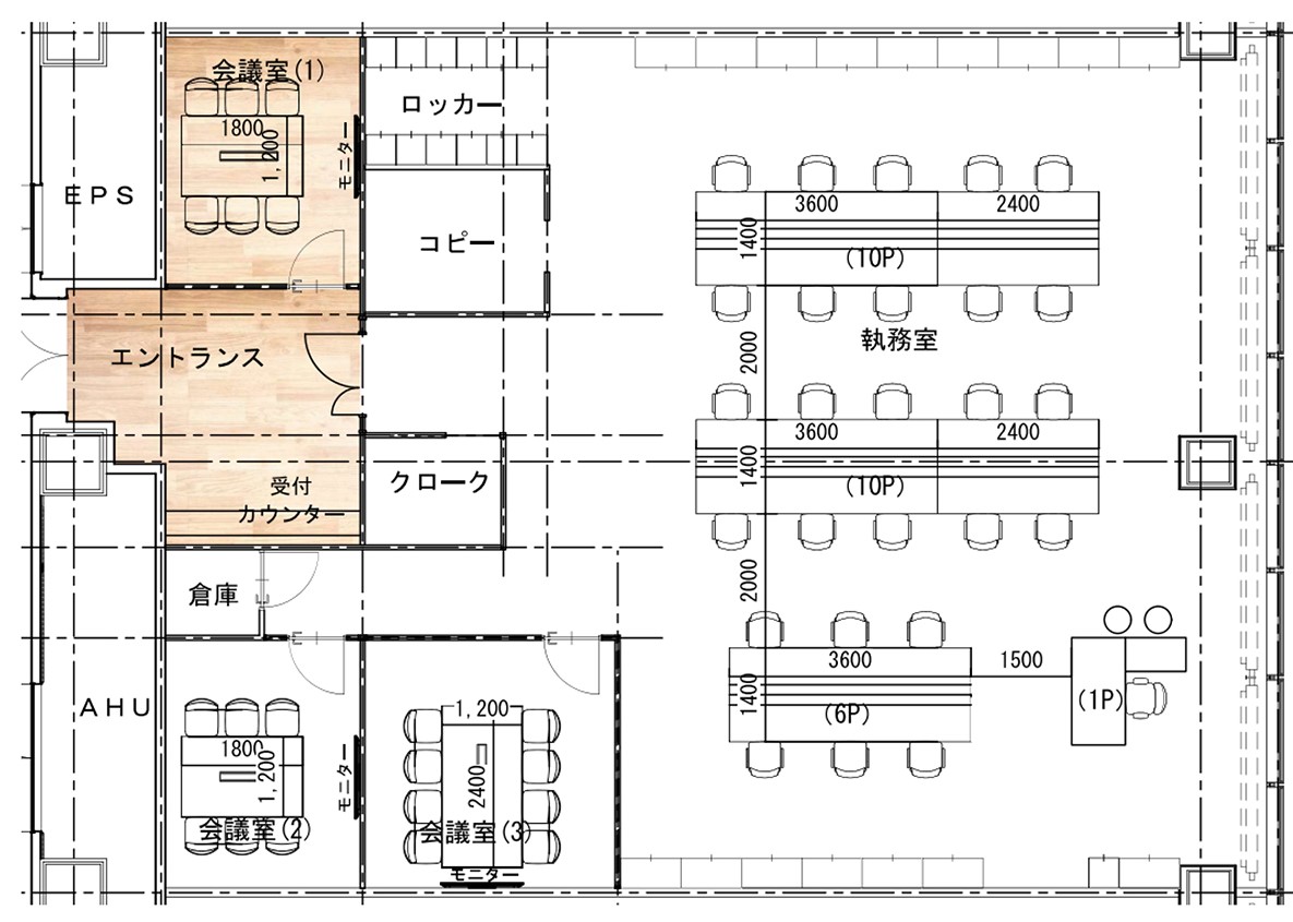
東京メトロ丸ノ内線・半蔵門線【大手町駅】徒歩1分、JR各線【東京駅】徒歩9分と複数路線・複数駅利用可能な便利な立地にございます。当ビルは、オフィス・イベントホール・クリニック・ショップやレストランの店舗が併設されており、多様な用途に対応する利便性の高いビルとなっております。貸室内は、無柱空間となっており、効率的なレイアウトを可能にします。6名用・8名用会議室が既に設置されており、執務室に什器が設置されているため、内装造作費を大幅に削減することができ、入居後すぐにご利用いただくことが可能となります。是非一度ご覧くださいませ!
※掲載内容とお引渡し状態が異なる場合は現況を優先させていただきます。
OVERVIEW
- 物件No.
- 2-3446
- 募集期間
- ご成約まで
- 所在地
- 千代田区大手町
- 最寄駅
-
東京メトロ丸ノ内線
大手町駅 徒歩1分
東京メトロ半蔵門線
大手町駅 徒歩1分
JR山手線
東京駅 徒歩9分
- 面積
- 65.78坪 / 217.46㎡
- 会議室
- 6名掛け会議室×2
8名掛け会議室×1
- 推奨人数
- 20~27人
- 構造
- S造・一部SRC造・RC造
- 規模
- 地下4階付31階建
- 施工
- 2002年
- エレベーター
- 19基(乗用16基、非常用2基、人荷用1基 )
- 天井の高さ
- 2,700mm
- 空調
- 個別空調
- トイレ
- 共用 男女別 洋式
- 床使用
- OAフロア(H=100mm)
- 賃料
- ご相談
- 共益費
- ご相談
- 預託金
- 賃料の12ヶ月分
- 契約期間
- ―
- 引き渡し時期
- 2025年7月1日予定
- その他
- 再契約料:無/ 償却:無/ 礼金:無/ 契約形態:定期建物賃貸借契約/ 契約期間:年相談/
現在オンライン内覧が可能です
オンライン内覧について詳しくはこちら
CHECK IT!
この物件についてもっと詳しく
そのまんまオフィス会員
3つのメリット
-

物件の
詳細情報の公開 -

新着物件を
お知らせ -

未公開物件を
ご紹介
おすすめ物件
-
CAN RENT
NEW
新築オフィスビル(2025年9月竣工予定)にセットアップオフィスが誕生!
千代田区東神田
44.82坪(148.17㎡)
-
CAN RENT
【No.2-3701 NOVEL WORK 半蔵門/仲介手数料不要・原状回復工事無し】約20坪の空間に会議室、ラウンジスペース、テレカンブース等設備も充実!
千代田区隼町
24.2坪(80.02㎡)
会員限定
-
CAN RENT
【No.2-3568 サンジュ共和十番館/仲介手数料不要!】JR中央線快速【御茶ノ水駅】徒歩6分圏内利用可能!約50坪・会議室2室付きのフルセットアップオフィス!
千代田区神田駿河台
48.76坪(161.22㎡)
会員限定









