
JR山手線「神田駅」、東京メトロ日比谷線「秋葉原駅」、都営新宿線「岩本町駅」など複数路線利用可能な利便性の高いエリアに居抜きオフィスが登場いたしました。本物件は、2018年7月にエントランスがリニューアルされており、暖色系の間接照明が暖かみを演出する、高級感のある空間が魅力で、洗練された雰囲気を感じていただける物件です。貸室内は、会議室造作1室・個室ブース1室・打つ合わせ室1室設置済みです。さらに、窓面が大きく採光性に優れており、明るく快適なオフィスです。周辺には、飲食店舗も多くランチには困らない立地です。内見も可能ですのでご興味ございましたら、お早めにご内見くださいませ!
※什器に関してはすべて撤去いたします。
※掲載内容とお引渡し状態が異なる場合は現況を優先させていただきます。
OVERVIEW
- 物件No.
- 2-3650
- 募集期間
- 2025年11月末日まで
- 所在地
- 千代田区神田東松下町
- 最寄駅
-
JR山手線
神田駅 徒歩4分
東京都交通局新宿線
岩本町駅 徒歩2分
東京メトロ銀座線
神田駅 徒歩2分
- 面積
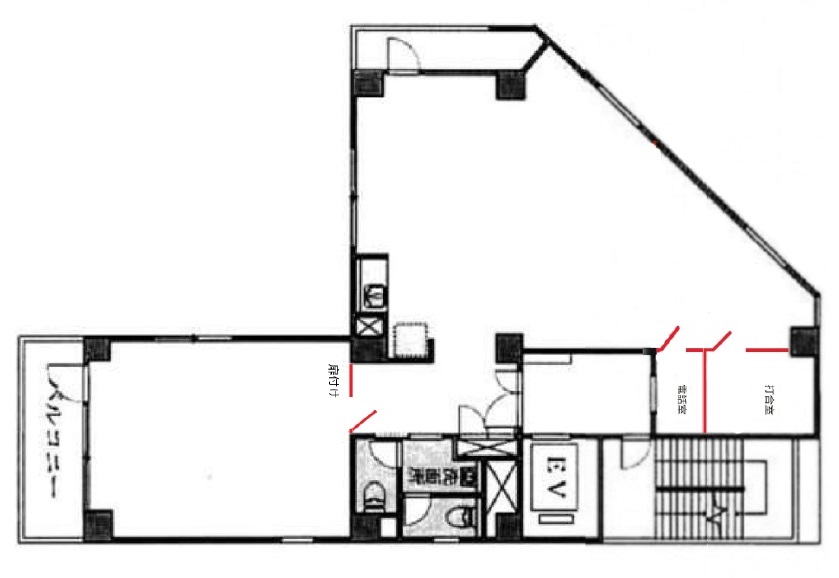
- 31.72坪 / 104.87㎡
- 会議室
- 8名掛け会議室×1
- 推奨人数
- 15~20人
- 構造
- 鉄骨鉄筋コンクリート造
- 規模
- 9階建
- 施工
- 1985年
- エレベーター
- 1基
- 天井の高さ
- ―
- 空調
- 個別空調
- トイレ
- 専用 男女別 洋式
- 床使用
- タイルカーペット
- 賃料
- 507,520円
- 共益費
- 賃料に含む
- 預託金
- 賃料の5ヶ月
- 契約期間
- 2年
- 引き渡し時期
- ご相談
- その他
- 更新料:無/ 償却:無/ 礼金:無/ 契約形態:普通賃貸借契約/ その他:SFビルサポート株式会社と保証委託契約を締結していただきます。※与信状況によって預託金額が変動する場合がございます。/
現在オンライン内覧が可能です
オンライン内覧について詳しくはこちら
CHECK IT!
この物件についてもっと詳しく
そのまんまオフィス会員
3つのメリット
-

物件の
詳細情報の公開 -

新着物件を
お知らせ -

未公開物件を
ご紹介













