
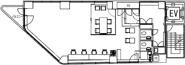
東京メトロ日比谷線・東急東横線【中目黒駅】徒歩8分、東急田園都市線【池尻大橋駅】徒歩12分、複数駅・複数路線が利用可能なアクセスに便利な立地に当ビルはございます。周辺には、コンビニや飲食店も多くございますので、ランチに困ることはありません。山手通りの角地に位置している為、室内は明るい空間になっており、受付・4名用会議室・男女別トイレ・機械警備など、約30坪コンパクトなサイズながらも充実したレイアウトになっております。スタートアップ企業様をはじめシェアオフィスからのご移転や新規拠点開設等、初期費用を抑えたい企業様におすすめです。ぜひ一度、ご内覧ください。
※掲載写真は他フロア参考写真となります。また、お引渡し状態が異なる場合、現況を優先させていただきます。
OVERVIEW
- 物件No.
- 2-2910
- 募集期間
- ご成約まで
- 所在地
- 目黒区青葉台
- 最寄駅
-
東京メトロ日比谷線
中目黒駅 徒歩8分
東急東横線
中目黒駅 徒歩8分
東急田園都市線
池尻大橋駅 徒歩12分
- 面積
- 31.33坪 / 103.58㎡
- 会議室
- 4名掛け会議室×1
- 推奨人数
- 10~15人
- 構造
- 鉄骨造
- 規模
- 地下1階付10階建
- 施工
- 1992年
- エレベーター
- 1基(11人乗)
- 天井の高さ
- ―
- 空調
- 個別空調
- トイレ
- 専用 男女別 洋式
- 床使用
- OAフロア(H=40mm)
- 賃料
- ご相談
- 共益費
- 賃料に含む
- 預託金
- 賃料の8ヶ月分
- 契約期間
- 2年
- 引き渡し時期
- 2025年10月予定
- その他
- 更新料:無/ 償却:無/ 礼金:無/ 契約形態:普通賃貸借契約/ その他:契約の際には、貸主指定の保証会社と保証委託契約を締結していただきます。/
現在オンライン内覧が可能です
オンライン内覧について詳しくはこちら
CHECK IT!
この物件についてもっと詳しく
そのまんまオフィス会員
3つのメリット
-

物件の
詳細情報の公開 -

新着物件を
お知らせ -

未公開物件を
ご紹介















