
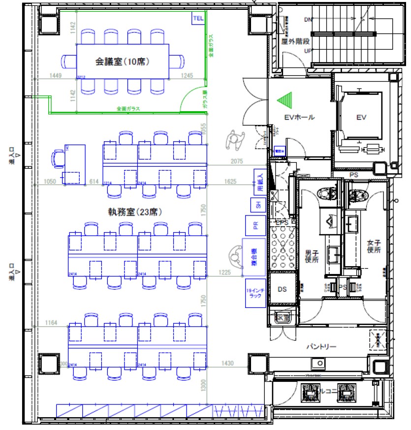
都内有数の商業エリア「秋葉原」に居抜きオフィスが登場しました!最寄りの都営新宿線【岩本町駅】徒歩2分に加え、JR各線【秋葉原駅】までも徒歩5分と優れた立地が企業の成長を加速させます!5段階のセキュリティラインが導入された当ビルは、安心して働ける厳重な環境となっております。13人乗の余裕のある広さのエレベーターでフロアへ上がると、ガラスウォールで明るく整形のとれた無柱空間がお客様を迎えます。室内には10名程度での利用を想定した会議室スペースが設置済み。パントリー、男女別のトイレもそれぞれ余裕をもった広さを備えており、従業員の皆様の快適な業務をサポートします。ぜひ一度、ご覧くださいませ。
※掲載レイアウト上の什器、家具のお引渡しはございません。予めご了承ください。また、お引渡し状態が異なる場合は現況を優先させていただきます。
OVERVIEW
- 物件No.
- 2-3557
- 募集期間
- 2025年11月14日成約まで
- 所在地
- 千代田区岩本町
- 最寄駅
-
東京都交通局新宿線
岩本町駅 徒歩2分
東京メトロ日比谷線
秋葉原駅 徒歩3分
JR山手線
秋葉原駅 徒歩5分
- 面積
- 45坪 / 148.77㎡
- 会議室
- 10名掛け会議室×1
- 推奨人数
- 20~25人
- 構造
- 鉄骨造
- 規模
- 8階建
- 施工
- 2009年
- エレベーター
- 1基(13人乗)
- 天井の高さ
- 2,700mm
- 空調
- 個別空調
- トイレ
- 専用 男女別 洋式
- 床使用
- OAフロア(H=100mm)
- 賃料
- ご相談
- 共益費
- 賃料に含む
- 預託金
- 賃料の12ヶ月分
- 契約期間
- 3年
- 引き渡し時期
- ご相談
- その他
- 再契約料:無/ 償却:無/ 礼金:無/ 契約形態:定期建物賃貸借契約/
現在オンライン内覧が可能です
オンライン内覧について詳しくはこちら
CHECK IT!
この物件についてもっと詳しく
そのまんまオフィス会員
3つのメリット
-

物件の
詳細情報の公開 -

新着物件を
お知らせ -

未公開物件を
ご紹介









