
品川区西五反田に位置する当該ビルは、ビジネスの中心地でありながら自然環境も豊かなエリアにあります。以下のポイントを踏まえて、オフィスビルを探している方にオススメの物件です。交通アクセスも各線利用が可能の為、通勤等にも便利です。 近隣には東急ストアをはじめとしたスーパー等が所在しているため、日常業務の中で必要なものを購入することが可能。 飲食店やカフェが多く、ビジネスランチやアフターワークにも最適です。また、林試公園や目黒川の桜並木など、都心でありながら自然を楽しむことができます。ビジネスの利便性と快適な生活環境を兼ね備えた理想的なオフィススペースです。ぜひ一度ご検討ください。
■提案型セットアップオフィスプラン
【セットアッププランA】
間仕切り・電気配線のみ ※什器・オフィス家具の付属はございません。
【セットアッププランB】
間仕切り・什器・オフィス家具の付属がございます。
詳細は個別にお問い合わせいただけますようお願いいたします。
OVERVIEW
- 物件No.
- 2-3585
- 募集期間
- ご成約まで
- 所在地
- 品川区西五反田
- 最寄駅
-
東急池上線
大崎広小路駅 徒歩3分
JR山手線
五反田駅 徒歩7分
東京都交通局浅草線
都営浅草線 五反田駅 徒歩7分
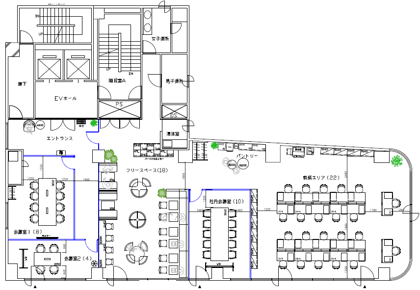
- 面積
- 89.16坪 / 294.74㎡
- 会議室
- 4名掛け会議室×1
8名掛け会議室×1
10名掛け会議室×1
- 推奨人数
- 22~25人
- 構造
- 鉄骨鉄筋コンクリート造
- 規模
- 地下1階付10階建
- 施工
- 1991年
- エレベーター
- 2基(11人乗)
- 天井の高さ
- 2,420mm(一部2,230mm)
- 空調
- 個別空調
- トイレ
- 専用 男女別 洋式
- 床使用
- タイルカーペット
- 賃料
- ご相談
- 共益費
- 賃料に含む
- 預託金
- ご相談
- 契約期間
- 2年
- 引き渡し時期
- ご相談
- その他
- 更新料:無/ 償却:無/ 礼金:無/ 契約形態:普通賃貸借契約/ その他:セットアップオフィスについて2プラン用意がございます。詳細は左記コメント欄を参考ください。/
現在オンライン内覧が可能です
オンライン内覧について詳しくはこちら
CHECK IT!
この物件についてもっと詳しく
そのまんまオフィス会員
3つのメリット
-

物件の
詳細情報の公開 -

新着物件を
お知らせ -

未公開物件を
ご紹介











