新耐震
東京フロントテラス
新耐震
東京フロントテラス
- 所在地
- :
- 東京都品川区東品川2-3-14
- 最寄駅
- :
-
天王洲アイル駅まで徒歩1分
天王洲アイル駅まで徒歩7分
品川駅まで徒歩20分
品川駅まで徒歩20分
品川駅まで徒歩20分
- 構造
- :
- 鉄骨鉄筋コンクリート造、鉄筋造/新耐震
- 規模
- :
- 地下1階付22階建
- 竣工
- :
- 1992年6月
- 設備
- :
- EV:9基、駐車場:有
現在募集中の区画
- 階数
- 面積
- 賃料
- 共益費
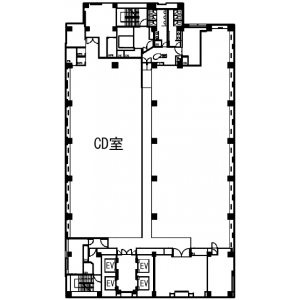
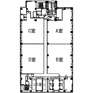
- 間取図
エリア条件が近い物件
エリア条件が近い物件
お気軽にお問合せください
