新耐震
横浜NTビル
新耐震
横浜NTビル
- 所在地
- :
- 神奈川県横浜市西区平沼1-2-24
- 最寄駅
- :
-
横浜駅まで徒歩5分
横浜駅まで徒歩5分
横浜駅まで徒歩5分
高島町駅まで徒歩6分
平沼橋駅まで徒歩8分
- 構造
- :
- 鉄骨鉄筋コンクリート造/新耐震
- 規模
- :
- 地下1階付7階建
- 竣工
- :
- 1994年3月
- 設備
- :
- EV:2基(11人乗)、1基(15人乗)、駐車場:有
現在募集中の区画
- 階数
- 面積
- 賃料
- 共益費
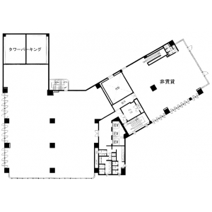
- 間取図
エリア条件が近い物件
エリア条件が近い物件
お気軽にお問合せください
- HOME
- >
- エリアから探す
- >
- 横浜エリア
- >
- 横浜市西区・神奈川区
- >
- 横浜NTビル
