新耐震
当社貸主物件
北大手町スクエア
新耐震
当社貸主物件
北大手町スクエア
- 所在地
- :
- 東京都千代田区内神田1-5-12
- 最寄駅
- :
-
大手町駅まで徒歩5分
神田駅まで徒歩5分
小川町駅まで徒歩7分
淡路町駅まで徒歩8分
新御茶ノ水駅まで徒歩9分
- 構造
- :
- 鉄骨鉄筋コンクリート造/新耐震
- 規模
- :
- 地下1階付8階建
- 竣工
- :
- 1997年4月
- 設備
- :
- EV:2基、駐車場:有
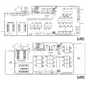
現在募集中の区画
- 階数
- 面積
- 賃料
- 共益費
- 間取図
エリア条件が近い物件
エリア条件が近い物件
お気軽にお問合せください
- HOME
- >
- エリアから探す
- >
- 千代田区
- >
- 御茶ノ水・神田・秋葉原
- >
- 北大手町スクエア
