新耐震
PMO秋葉原
新耐震
PMO秋葉原
- 所在地
- :
- 東京都千代田区岩本町3-11-6
- 最寄駅
- :
-
岩本町駅まで徒歩3分
秋葉原駅まで徒歩4分
秋葉原駅まで徒歩8分
秋葉原駅まで徒歩8分
浅草駅まで徒歩11分
- 構造
- :
- 鉄骨造/新耐震
- 規模
- :
- 8階建
- 竣工
- :
- 2010年1月
- 設備
- :
- EV:2基(13人乗)、駐車場:有
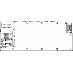
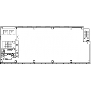
現在募集中の区画
- 階数
- 面積
- 賃料
- 共益費
- 間取図
エリア条件が近い物件
エリア条件が近い物件
お気軽にお問合せください
- HOME
- >
- エリアから探す
- >
- 千代田区
- >
- 御茶ノ水・神田・秋葉原
- >
- PMO秋葉原
