新耐震
神宮前浅間ビル
新耐震
神宮前浅間ビル
- 所在地
- :
- 東京都渋谷区神宮前6-18-13
- 最寄駅
- :
-
明治神宮前駅まで徒歩5分
渋谷駅まで徒歩5分
渋谷駅まで徒歩9分
原宿駅まで徒歩10分
表参道駅まで徒歩13分
- 構造
- :
- 鉄骨鉄筋コンクリート造/新耐震
- 規模
- :
- 8階建
- 竣工
- :
- 1991年7月
- 設備
- :
- EV:1基(11人乗)
現在募集中の区画
- 階数
- 面積
- 賃料
- 共益費
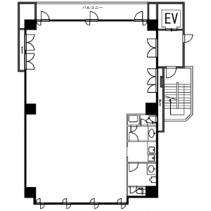
- 間取図
エリア条件が近い物件
エリア条件が近い物件
お気軽にお問合せください
