新宿光陽ビル
新宿光陽ビル
- 所在地
- :
- 東京都新宿区新宿5-15-6
- 最寄駅
- :
-
新宿三丁目駅まで徒歩4分
新宿三丁目駅まで徒歩6分
新宿三丁目駅まで徒歩6分
東新宿駅まで徒歩6分
新宿駅まで徒歩11分
- 構造
- :
- 鉄骨鉄筋コンクリート造
- 規模
- :
- 11階建
- 竣工
- :
- 1979年1月
- 設備
- :
- EV:1基(9人乗)
現在募集中の区画
- 階数
- 面積
- 賃料
- 共益費
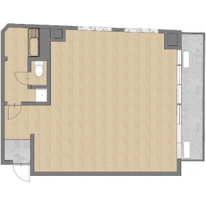
- 間取図
エリア条件が近い物件
エリア条件が近い物件
お気軽にお問合せください
- HOME
- >
- エリアから探す
- >
- 新宿区
- >
- 新宿・歌舞伎町・新宿御苑
- >
- 新宿光陽ビル
