八重洲中央ビル
八重洲中央ビル
- 所在地
- :
- 東京都中央区日本橋3-5-11
- 最寄駅
- :
-
東京駅まで徒歩4分
日本橋駅まで徒歩4分
日本橋駅まで徒歩4分
日本橋駅まで徒歩4分
宝町駅まで徒歩5分
- 構造
- :
- 鉄骨鉄筋コンクリート造
- 規模
- :
- 10階建
- 竣工
- :
- 1976年1月
- 設備
- :
- EV:1基(9人乗)
現在募集中の区画
- 階数
- 面積
- 賃料
- 共益費
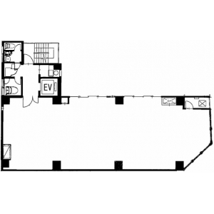
- 間取図
エリア条件が近い物件
エリア条件が近い物件
お気軽にお問合せください
- HOME
- >
- エリアから探す
- >
- 中央区
- >
- 八重洲・京橋・日本橋
- >
- 八重洲中央ビル
