新耐震
後楽園SAJビル
新耐震
後楽園SAJビル
- 所在地
- :
- 東京都文京区本郷1-34-3
- 最寄駅
- :
-
後楽園駅まで徒歩2分
春日駅まで徒歩3分
後楽園駅まで徒歩3分
水道橋駅まで徒歩6分
水道橋駅まで徒歩9分
- 構造
- :
- 鉄骨造/新耐震
- 規模
- :
- 地下1階付9階建
- 竣工
- :
- 1992年10月
- 設備
- :
- EV:1基(11人乗)
現在募集中の区画
- 階数
- 面積
- 賃料
- 共益費
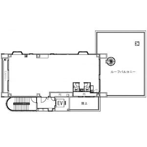
- 間取図
エリア条件が近い物件
エリア条件が近い物件
お気軽にお問合せください
