新耐震
築地高野ビル
新耐震
築地高野ビル
- 所在地
- :
- 東京都中央区築地3-12-2
- 最寄駅
- :
-
築地駅まで徒歩3分
新富町駅まで徒歩5分
東銀座駅まで徒歩8分
東銀座駅まで徒歩8分
築地市場駅まで徒歩9分
- 構造
- :
- 鉄骨鉄筋コンクリート造/新耐震
- 規模
- :
- 7階建
- 竣工
- :
- 1993年11月
- 設備
- :
- EV:1基
現在募集中の区画
- 階数
- 面積
- 賃料
- 共益費
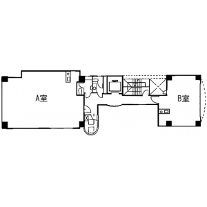
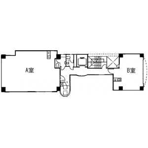
- 間取図
エリア条件が近い物件
エリア条件が近い物件
お気軽にお問合せください
- HOME
- >
- エリアから探す
- >
- 中央区
- >
- 築地・新富・八丁堀・入船
- >
- 築地高野ビル
