渋谷野村證券ビル
渋谷野村證券ビル
- 所在地
- :
- 東京都渋谷区渋谷1-14-16
- 最寄駅
- :
-
渋谷駅まで徒歩1分
渋谷駅まで徒歩1分
渋谷駅まで徒歩2分
渋谷駅まで徒歩2分
渋谷駅まで徒歩2分
- 構造
- :
- 鉄骨・鉄筋コンクリート造
- 規模
- :
- 地下1階付9階建
- 竣工
- :
- 1981年11月
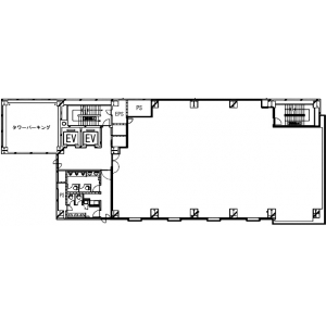
- 設備
- :
- EV:2基(17人乗)
現在募集中の区画
- 階数
- 面積
- 賃料
- 共益費
- 間取図
エリア条件が近い物件
エリア条件が近い物件
お気軽にお問合せください
