新耐震
神宮前董友ビルⅠ (旧:原宿董友ビル)
新耐震
神宮前董友ビルⅠ (旧:原宿董友ビル)
- 所在地
- :
- 東京都渋谷区神宮前6-10-9
- 最寄駅
- :
-
明治神宮前駅まで徒歩2分
明治神宮前駅まで徒歩2分
原宿駅まで徒歩7分
表参道駅まで徒歩9分
表参道駅まで徒歩9分
- 構造
- :
- 鉄骨鉄筋コンクリート造/新耐震
- 規模
- :
- 地下1階付8階建
- 竣工
- :
- 1986年9月
- 設備
- :
- EV:1基(9人乗)
現在募集中の区画
- 階数
- 面積
- 賃料
- 共益費
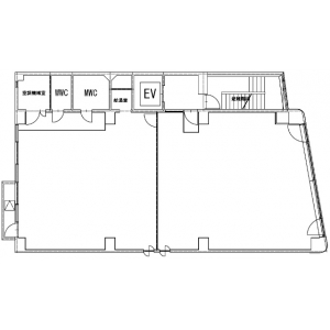
- 間取図
エリア条件が近い物件
エリア条件が近い物件
お気軽にお問合せください
