早野ビル
早野ビル
- 所在地
- :
- 東京都港区西麻布2-13-12
- 最寄駅
- :
-
六本木駅まで徒歩9分
乃木坂駅まで徒歩10分
広尾駅まで徒歩10分
六本木駅まで徒歩11分
表参道駅まで徒歩14分
- 構造
- :
- 鉄骨鉄筋コンクリート造
- 規模
- :
- 10階建
- 竣工
- :
- 1967年
- 設備
- :
- EV:1基
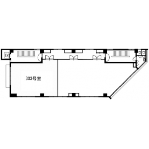
現在募集中の区画
- 階数
- 面積
- 賃料
- 共益費
- 間取図
エリア条件が近い物件
エリア条件が近い物件
お気軽にお問合せください
