新耐震
エス・ティビル
4階(東京都港区芝公園)
新耐震
エス・ティビル
4階(東京都港区芝公園)
- 賃料(坪単価):
- 相談(@―)
- 共益費(坪単価)
- :
- 賃料に含む (@―)
- 預託金(保証金/敷金)
- :
- ―(12ヶ月)
- 面積
- :
- 69.98坪 (231.34m²)
- 所在地
- :
- 東京都港区芝公園1-2-4
- 最寄駅
- :
-
御成門駅まで徒歩2分
大門駅まで徒歩6分
浜松町駅まで徒歩10分
虎ノ門駅まで徒歩10分
新橋駅まで徒歩13分
物件情報
所在地・アクセス
- 物件名
- エス・ティビル 4階
- 所在地
- 東京都港区芝公園1-2-4
- 最寄駅
-
都営三田線 御成門駅まで徒歩2分
都営浅草線 大門駅まで徒歩6分
JR山手線 浜松町駅まで徒歩10分
東京メトロ銀座線 虎ノ門駅まで徒歩10分
JR山手線 新橋駅まで徒歩13分
賃貸条件
- 賃料(坪単価)
- 相談(@―)
- 礼 金
- 無
- 共益費(坪単価)
- 賃料に含む(@―)
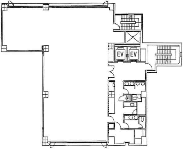
- 面 積
- 69.98坪 (231.34m²)
- 賃料+共益費(坪単価)
- 相談 (@―)
- 償 却
- 無
- 預託金(保証金/敷金)
- ―(12ヶ月)
- 入居可能日
- 2026年4月予定
- 更新料(再契約料)
- 無
- 契約期間
- 2年
物件概要
- 特 徴
- 構 造
- 鉄骨鉄筋コンクリート造/新耐震
- 物件タイプ
- 事務所
- 規 模
- 地下2階付9階建
- 取引態様
- 一般媒介
- 竣 工
- 1992年10月
- 設 備
-
E V :あり、天井高:2580㎜、床仕様:OAフロア(H=50mm)、空調:個別空調、トイレ:共用 男女別 洋式
その他:機械警備、駐車場設備あり
- 備 考
-
■貸室面積には、トイレ・給湯室等の面積は含まれません。 ■床荷重:300㎏/㎡ ■電気容量:150A ■電気料:専用部従量式+共用部使用面積按分にて負担 ■水道料:使用面積按分にて負担 ■エントランス開放時間:平日7:00~19:00、土日祝Close ■通用口開放時間:平日7:00~20:00
注) 上記の価格には、別途、消費税及び地方消費税が課されます。
消費税率が変更された場合には、以後、変更後の税率が課されることとなります。
物件情報更新日:2025-08-12
お気軽にお問合せください
- HOME
- >
- エリアから探す
- >
- 港区
- >
- 浜松町・芝大門・芝公園
- >
- エス・ティビル
- >
- エス・ティビル 4階
