エコー京橋ビル
2階(東京都中央区京橋)
エコー京橋ビル
2階(東京都中央区京橋)
- 賃料(坪単価):
- 418,992円(@11,200円)
- 共益費(坪単価)
- :
- 130,935円 (@3,500円)
- 預託金(保証金/敷金)
- :
- 2,513,952円(6ヶ月)
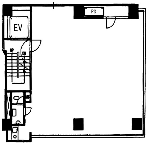
- 面積
- :
- 37.41坪 (123.67m²)
- 所在地
- :
- 東京都中央区京橋3-12-1
- 最寄駅
- :
-
宝町駅まで徒歩1分
京橋駅まで徒歩4分
銀座一丁目駅まで徒歩6分
八丁堀駅まで徒歩7分
八丁堀駅まで徒歩7分
物件情報
所在地・アクセス
- 物件名
- エコー京橋ビル 2階
- 所在地
- 東京都中央区京橋3-12-1
- 最寄駅
-
都営浅草線 宝町駅まで徒歩1分
東京メトロ銀座線 京橋駅まで徒歩4分
東京メトロ有楽町線 銀座一丁目駅まで徒歩6分
東京メトロ日比谷線 八丁堀駅まで徒歩7分
JR京葉線 八丁堀駅まで徒歩7分
賃貸条件
- 賃料(坪単価)
- 418,992円(@11,200円)
- 礼 金
- 無
- 共益費(坪単価)
- 130,935円(@3,500円)
- 面 積
- 37.41坪 (123.67m²)
- 賃料+共益費(坪単価)
- 549,927円 (@14,700円)
- 償 却
- 賃料の1ヶ月分
- 預託金(保証金/敷金)
- 2,513,952円(6ヶ月)
- 入居可能日
- 2026年5月上旬予定
- 更新料(再契約料)
- 無
- 契約期間
- 2年
物件概要
- 特 徴
- 構 造
- 鉄筋コンクリート造
- 物件タイプ
- 事務所
- 規 模
- 10階建
- 取引態様
- 一般媒介
- 竣 工
- 1975年2月
- 設 備
-
E V :1基、天井高:―㎜、床仕様:OAフロア、空調:個別空調、トイレ:専用 男女共用 洋式
その他:機械警備
- 備 考
-
■貸主指定の保証会社と保証委託契約を締結していただきます。
注) 上記の価格には、別途、消費税及び地方消費税が課されます。
消費税率が変更された場合には、以後、変更後の税率が課されることとなります。
物件情報更新日:2026-02-05
お気軽にお問合せください
- HOME
- >
- エリアから探す
- >
- 中央区
- >
- 八重洲・京橋・日本橋
- >
- エコー京橋ビル
- >
- エコー京橋ビル 2階
