当社貸主物件
セットアップオフィス
新耐震
八丁堀ファーストスクエア
6階(東京都中央区八丁堀)
当社貸主物件
セットアップオフィス
新耐震
八丁堀ファーストスクエア
6階(東京都中央区八丁堀)
- 賃料(坪単価):
- 900,000円(@―)
- 共益費(坪単価)
- :
- 賃料に含む (@―)
- 預託金(保証金/敷金)
- :
- 4,500,000円(5ヶ月)
- 面積
- :
- 34.04坪 (112.54m²)
- 所在地
- :
- 東京都中央区八丁堀4-8-1
- 最寄駅
- :
-
八丁堀駅まで徒歩1分
八丁堀駅まで徒歩1分
宝町駅まで徒歩5分
新富町駅まで徒歩7分
茅場町駅まで徒歩8分
スタッフコメント
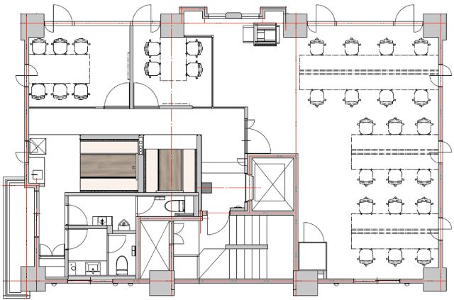
銀座、日本橋、東京エリアが徒歩圏内のセットアップオフィスです。東京メトロ日比谷線・JR京葉線【八丁堀駅】徒歩1分など、徒歩10分圏内に5駅6路線のマルチアクセスが魅力となっております。都心・駅近の軽快なフットワークを得るこのエリアはアクセス良好な利便性の高いオフィス環境にてビジネスを実現します。また、【東京駅】から新川まで繋がる鍛冶橋通り沿いに位置し、存在感のある外観のオフィスです。貸室内は窓面が広く、明るく開放的な空間を施しお客様にとって働くやすい空間をご提供。6階の室内は2026年4月、9階の室内は、2026年6月に内装造作付きセットアップ工事実施予定です。(会議室・執務室内什器設置予定)是非一度、現地でご内覧くださいませ。
担当:奥村 美月 支店:日本橋店 更新日:2026年4月14日
物件情報
所在地・アクセス
- 物件名
- 八丁堀ファーストスクエア 6階
- 所在地
- 東京都中央区八丁堀4-8-1
- 最寄駅
-
JR京葉線 八丁堀駅まで徒歩1分
東京メトロ日比谷線 八丁堀駅まで徒歩1分
都営浅草線 宝町駅まで徒歩5分
東京メトロ有楽町線 新富町駅まで徒歩7分
東京メトロ日比谷線 茅場町駅まで徒歩8分
賃貸条件
- 賃料(坪単価)
- 900,000円(@―)
- 礼 金
- 無
- 共益費(坪単価)
- 賃料に含む(@―)
- 面 積
- 34.04坪 (112.54m²)
- 賃料+共益費(坪単価)
- 900,000円 (@―)
- 償 却
- 無
- 預託金(保証金/敷金)
- 4,500,000円(5ヶ月)
- 入居可能日
- 2026年5月上旬予定
- 更新料(再契約料)
- 新賃料の1ヶ月分
- 契約期間
- 年相談(定借)
物件概要
- 特 徴
- 構 造
- 鉄骨鉄筋コンクリート造/新耐震
- 物件タイプ
- 事務所
- 規 模
- 地下1階付10階建
- 取引態様
- 貸主
- 竣 工
- 1986年4月
- 設 備
-
E V :1基、天井高:―㎜、床仕様:―、空調:個別空調、トイレ:専用 男女別 洋式
その他:機械警備
- 備 考
-
※リニューアル内容・レイアウト等、変更となる可能性がございますので、予めご了承ください。 ■2021年2月、大規模リニューアル工事完了!(外観・エントランス) ■2026年4月、内装造作付きセットアップ工事実施予定!(会議室・執務室内什器設置予定) ■エントランス開放時間:平日8:00~19:00、土曜8:00~13:00、日祝Close ※左記時間帯以外はセキュリティカード利用により24時間入退館可能 ■SFビルサポート株式会社と保証委託契約を締結していただきます。 ※与信状況によって預託金額が変動する場合がございます。
注) 上記の価格には、別途、消費税及び地方消費税が課されます。
消費税率が変更された場合には、以後、変更後の税率が課されることとなります。
物件情報更新日:2026-04-13
お気軽にお問合せください
現在募集中の区画
- 階数
- 面積
- 賃料
- 共益費
- 間取図
- HOME
- >
- エリアから探す
- >
- 中央区
- >
- 築地・新富・八丁堀・入船
- >
- 八丁堀ファーストスクエア
- >
- 八丁堀ファーストスクエア 6階
