新耐震基準適合
神田大木ビル
7階(東京都千代田区神田鍛冶町)
新耐震基準適合
神田大木ビル
7階(東京都千代田区神田鍛冶町)
- 賃料(坪単価):
- 相談(@―)
- 共益費(坪単価)
- :
- 542,963円 (@3,750円)
- 預託金(保証金/敷金)
- :
- ―(12ヶ月)
- 面積
- :
- 144.79坪 (478.64m²)
- 所在地
- :
- 東京都千代田区神田鍛冶町3-3
- 最寄駅
- :
-
神田駅まで徒歩1分
神田駅まで徒歩2分
淡路町駅まで徒歩5分
小川町駅まで徒歩5分
新御茶ノ水駅まで徒歩5分
物件情報
所在地・アクセス
- 物件名
- 神田大木ビル 7階
- 所在地
- 東京都千代田区神田鍛冶町3-3
- 最寄駅
-
東京メトロ銀座線 神田駅まで徒歩1分
JR山手線 神田駅まで徒歩2分
東京メトロ丸ノ内線 淡路町駅まで徒歩5分
都営新宿線 小川町駅まで徒歩5分
東京メトロ千代田線 新御茶ノ水駅まで徒歩5分
賃貸条件
- 賃料(坪単価)
- 相談(@―)
- 礼 金
- 無
- 共益費(坪単価)
- 542,963円(@3,750円)
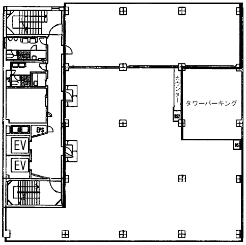
- 面 積
- 144.79坪 (478.64m²)
- 賃料+共益費(坪単価)
- 相談 (@―)
- 償 却
- 無
- 預託金(保証金/敷金)
- ―(12ヶ月)
- 入居可能日
- 相談
- 更新料(再契約料)
- 無
- 契約期間
- 3年(定借)
物件概要
- 特 徴
- 構 造
- 鉄骨鉄筋コンクリート造/新耐震基準適合
- 物件タイプ
- 事務所
- 規 模
- 地下2階付9階建
- 取引態様
- 一般媒介
- 竣 工
- 1966年8月
- 設 備
-
E V :2基(17人乗)、天井高:2,720mm(一部2,210mm)㎜、床仕様:OAフロア(H=50mm)、空調:個別空調、トイレ:共用 男女別 洋式
その他:機械警備、駐車場設備あり
- 備 考
-
■2007年、耐震補強工事実施済 ■貸室面積には、トイレ・給湯室等の面積は含まれません。 ■エントランス開放時間:平日7:00~19:00、土日祝Close ■貸主指定の火災保険にご加入いただきます。
注) 上記の価格には、別途、消費税及び地方消費税が課されます。
消費税率が変更された場合には、以後、変更後の税率が課されることとなります。
物件情報更新日:2026-03-13
お気軽にお問合せください
現在募集中の区画
- 階数
- 面積
- 賃料
- 共益費
- 間取図
- HOME
- >
- エリアから探す
- >
- 千代田区
- >
- 御茶ノ水・神田・秋葉原
- >
- 神田大木ビル
- >
- 神田大木ビル 7階
