居抜物件
新耐震
箱崎升喜ビル
4階C室(東京都中央区日本橋箱崎町)
居抜物件
新耐震
箱崎升喜ビル
4階C室(東京都中央区日本橋箱崎町)
- 賃料(坪単価):
- 317,520円(@12,000円)
- 共益費(坪単価)
- :
- 79,380円 (@3,000円)
- 預託金(保証金/敷金)
- :
- 3,175,200円(10ヶ月)
- 面積
- :
- 26.46坪 (87.47m²)
- 所在地
- :
- 東京都中央区日本橋箱崎町17-9
- 最寄駅
- :
-
水天宮前駅まで徒歩3分
茅場町駅まで徒歩7分
茅場町駅まで徒歩7分
人形町駅まで徒歩9分
浜町駅まで徒歩15分
物件情報
所在地・アクセス
- 物件名
- 箱崎升喜ビル 4階C室
- 所在地
- 東京都中央区日本橋箱崎町17-9
- 最寄駅
-
東京メトロ半蔵門線 水天宮前駅まで徒歩3分
東京メトロ日比谷線 茅場町駅まで徒歩7分
東京メトロ東西線 茅場町駅まで徒歩7分
都営浅草線 人形町駅まで徒歩9分
都営新宿線 浜町駅まで徒歩15分
賃貸条件
- 賃料(坪単価)
- 317,520円(@12,000円)
- 礼 金
- 無
- 共益費(坪単価)
- 79,380円(@3,000円)
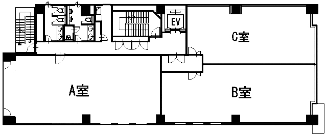
- 面 積
- 26.46坪 (87.47m²)
- 賃料+共益費(坪単価)
- 396,900円 (@15,000円)
- 償 却
- 賃料の2ヶ月分
- 預託金(保証金/敷金)
- 3,175,200円(10ヶ月)
- 入居可能日
- 2026年4月25日予定
- 更新料(再契約料)
- 無
- 契約期間
- 2年
物件概要
物件情報更新日:2026-01-27
お気軽にお問合せください
- HOME
- >
- エリアから探す
- >
- 中央区
- >
- 茅場町・兜町・人形町・新川
- >
- 箱崎升喜ビル
- >
- 箱崎升喜ビル 4階C室
