HOME
>
エリアから探す
>
千代田区
>
御茶ノ水・神田・秋葉原
>
Biz Feel Iwamotocho (旧:神田TYビル)
>
Biz Feel Iwamotocho (旧:神田TYビル) 7+8階
当社貸主物件
セットアップオフィス
新耐震
Biz Feel Iwamotocho (旧:神田TYビル)
7+8階(東京都千代田区岩本町)
当社貸主物件
セットアップオフィス
新耐震
Biz Feel Iwamotocho (旧:神田TYビル)
7+8階(東京都千代田区岩本町)
- 賃料(坪単価):
- 648,270円(@27,000円)
- 共益費(坪単価)
- :
- 賃料に含む (@―)
- 預託金(保証金/敷金)
- :
- ―(無)
- 面積
- :
- 24.01坪 (79.37m²)
- 所在地
- :
- 東京都千代田区岩本町2-7-2
- 最寄駅
- :
-
岩本町駅まで徒歩4分
小伝馬町駅まで徒歩5分
神田駅まで徒歩7分
新日本橋駅まで徒歩7分
馬喰町駅まで徒歩9分
スタッフコメント
JR山手線【神田駅】徒歩7分の地に、敷金ゼロ&原状回復義務なしのセットアップオフィスが誕生しました!【神田駅】【秋葉原駅】の両駅が利用可能で、都内主要エリアはもちろん、地方へのアクセスも良好。東京進出を検討する企業様にとって理想的なロケーションです。周辺には多彩な飲食店が立ち並び、ランチや会食にも便利。内装デザインはレイアウトがしやすい整形の貸室形状を活かし、無駄なスペースの無い、洗練された空間を演出。Wi-Fiなどのインフラも整っており、入退去時のコストを抑えられる理想的なオフィス環境です。2026年6月にリニューアル完成予定で、街を明るく照らす存在となることでしょう。是非一度ご内見ください!
担当:馬本 一志 支店:小伝馬町店 更新日:2026年4月24日
物件情報
所在地・アクセス
- 物件名
- Biz Feel Iwamotocho (旧:神田TYビル) 7+8階
- 所在地
- 東京都千代田区岩本町2-7-2
- 最寄駅
-
都営新宿線 岩本町駅まで徒歩4分
東京メトロ日比谷線 小伝馬町駅まで徒歩5分
JR山手線 神田駅まで徒歩7分
JR総武線快速 新日本橋駅まで徒歩7分
JR総武線快速 馬喰町駅まで徒歩9分
賃貸条件
- 賃料(坪単価)
- 648,270円(@27,000円)
- 礼 金
- 無
- 共益費(坪単価)
- 賃料に含む(@―)
- 面 積
- 24.01坪 (79.37m²)
- 賃料+共益費(坪単価)
- 648,270円 (@27,000円)
- 償 却
- 無
- 預託金(保証金/敷金)
- ―(無)
- 入居可能日
- 即日
- 更新料(再契約料)
- 無
- 契約期間
- 2年
物件概要
- 特 徴
- 構 造
- 鉄骨造/新耐震
- 物件タイプ
- 事務所
- 規 模
- 地下1階付8階建
- 取引態様
- 貸主
- 竣 工
- 1991年5月
- 設 備
-
E V :1基、天井高:―㎜、床仕様:OAフロア、空調:個別空調、トイレ:専用 男女別 洋式
その他:EV不停止機能付
- 備 考
-
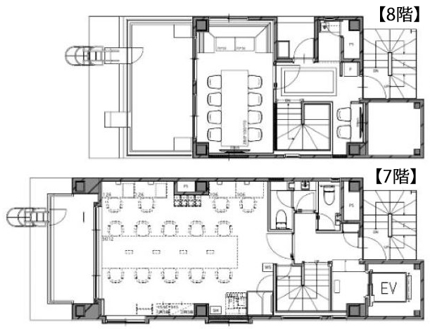
■2026年3月、内装造作付きセットアップ工事完了 ■会議室(8~10名用)・テレカンブース(1台)・執務室什器設置済(14席) ■契約開始より12ヶ月間解約不可(12ヶ月間以内解約の場合、違約金が発生いたします) ■原状回復義務なし(原状変更した場合や破損等を除く) ■クリーニング費用をご負担いただきます。(入居時) ■Wi-Fiパスワード変更費用:15,000円(入居時) ■貸主指定の清掃会社と貸室内の清掃契約を締結していただきます。 ■SFビルサポート株式会社と保証委託契約を締結していただきます。 ※与信状況によって敷金の預託をお願いする場合がございます。
注) 上記の価格には、別途、消費税及び地方消費税が課されます。
消費税率が変更された場合には、以後、変更後の税率が課されることとなります。
物件情報更新日:2026-04-23
お気軽にお問合せください
現在募集中の区画
- 階数
- 面積
- 賃料
- 共益費
- 間取図
- HOME
- >
- エリアから探す
- >
- 千代田区
- >
- 御茶ノ水・神田・秋葉原
- >
- Biz Feel Iwamotocho (旧:神田TYビル)
- >
- Biz Feel Iwamotocho (旧:神田TYビル) 7+8階
