新耐震
東京虎ノ門グローバルスクエア
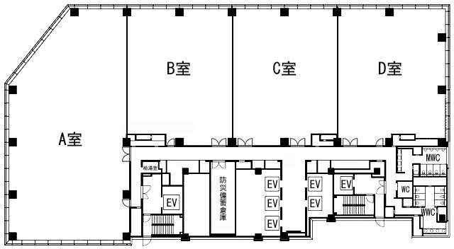
12階D室(東京都港区虎ノ門)
新耐震
東京虎ノ門グローバルスクエア
12階D室(東京都港区虎ノ門)
- 賃料(坪単価):
- 3,958,650円(@45,000円)
- 共益費(坪単価)
- :
- 賃料に含む (@―)
- 預託金(保証金/敷金)
- :
- 47,503,800円(12ヶ月)
- 面積
- :
- 87.97坪 (290.81m²)
- 所在地
- :
- 東京都港区虎ノ門1-3-1
- 最寄駅
- :
-
虎ノ門駅まで徒歩1分
虎ノ門ヒルズ駅まで徒歩5分
霞ヶ関駅まで徒歩5分
内幸町駅まで徒歩7分
新橋駅まで徒歩11分
物件情報
所在地・アクセス
- 物件名
- 東京虎ノ門グローバルスクエア 12階D室
- 所在地
- 東京都港区虎ノ門1-3-1
- 最寄駅
-
東京メトロ銀座線 虎ノ門駅まで徒歩1分
東京メトロ日比谷線 虎ノ門ヒルズ駅まで徒歩5分
東京メトロ千代田線 霞ヶ関駅まで徒歩5分
都営三田線 内幸町駅まで徒歩7分
JR山手線 新橋駅まで徒歩11分
賃貸条件
- 賃料(坪単価)
- 3,958,650円(@45,000円)
- 礼 金
- 無
- 共益費(坪単価)
- 賃料に含む(@―)
- 面 積
- 87.97坪 (290.81m²)
- 賃料+共益費(坪単価)
- 3,958,650円 (@45,000円)
- 償 却
- 無
- 預託金(保証金/敷金)
- 47,503,800円(12ヶ月)
- 入居可能日
- 相談
- 更新料(再契約料)
- 無
- 契約期間
- 3年(定借)
物件概要
- 特 徴
- 構 造
- 鉄骨造・一部鉄骨鉄筋コンクリート造/新耐震
- 物件タイプ
- 事務所
- 規 模
- 地下3階付24階建
- 取引態様
- 一般媒介
- 竣 工
- 2020年6月
- 設 備
-
E V :14基、天井高:3000㎜、床仕様:OAフロア(H=100mm)、空調:個別空調、トイレ:共用 男女別 洋式
その他:機械警備、EV不停止機能付、エントランスセキュリティ
- 備 考
-
※契約は㎡単位となります。 ■制振構造 ■床荷重:500㎏/㎡(一部1,000㎏/㎡) ■電気容量:60VA/㎡(90VA/㎡まで増設可能) ■グリッドシステム天井 ■EV⇒乗用:11基(高層用6基・低層用5基)、人荷用兼非常用:2基、駐輪場用:1基
注) 上記の価格には、別途、消費税及び地方消費税が課されます。
消費税率が変更された場合には、以後、変更後の税率が課されることとなります。
物件情報更新日:2025-12-17
お気軽にお問合せください
現在募集中の区画
- 階数
- 面積
- 賃料
- 共益費
- 間取図
- HOME
- >
- エリアから探す
- >
- 港区
- >
- 虎ノ門・神谷町
- >
- 東京虎ノ門グローバルスクエア
- >
- 東京虎ノ門グローバルスクエア 12階D室
