居抜物件
新耐震
神田カドウチ
8階(東京都千代田区神田鍛冶町)
居抜物件
新耐震
神田カドウチ
8階(東京都千代田区神田鍛冶町)
- 賃料(坪単価):
- 676,750円(@25,000円)
- 共益費(坪単価)
- :
- 賃料に含む (@―)
- 預託金(保証金/敷金)
- :
- 4,060,500円(6ヶ月)
- 面積
- :
- 27.07坪 (89.49m²)
- 所在地
- :
- 東京都千代田区神田鍛冶町3-7
- 最寄駅
- :
-
神田駅まで徒歩2分
小川町駅まで徒歩6分
淡路町駅まで徒歩6分
岩本町駅まで徒歩8分
秋葉原駅まで徒歩10分
スタッフコメント
「神田鍛冶町」は、東京都心に近い商業エリアで、ビジネスや商業活動が盛んな地域です。ビジネスエリアのため飲食店も充実しており、ランチやディナーを楽しむことができます。当物件はJR山手線【神田駅】から徒歩2分という好立地にあり、周辺エリアへのアクセスも非常に良好です。1階エントランスにはオートロックが設置されており、セキュリティ面も安心です。執務室は窓面が多く、明るく開放感のある空間となっております。約27坪の広さがあり、男女別トイレを完備しているため、女性社員も快適にご利用いただけます。さらに、ビル設備として大手町エリアを一望できる屋上があり、息抜きやリフレッシュに最適な環境です。ぜひ一度ご内見にお越しくださいませ。
担当:川上 勇二 支店:神田店 更新日:2026年5月13日
物件情報
所在地・アクセス
- 物件名
- 神田カドウチ 8階
- 所在地
- 東京都千代田区神田鍛冶町3-7
- 最寄駅
-
JR山手線 神田駅まで徒歩2分
都営新宿線 小川町駅まで徒歩6分
東京メトロ丸ノ内線 淡路町駅まで徒歩6分
都営新宿線 岩本町駅まで徒歩8分
JR山手線 秋葉原駅まで徒歩10分
賃貸条件
- 賃料(坪単価)
- 676,750円(@25,000円)
- 礼 金
- 無
- 共益費(坪単価)
- 賃料に含む(@―)
- 面 積
- 27.07坪 (89.49m²)
- 賃料+共益費(坪単価)
- 676,750円 (@25,000円)
- 償 却
- 契約時賃料の1ヶ月分
- 預託金(保証金/敷金)
- 4,060,500円(6ヶ月)
- 入居可能日
- 即日
- 更新料(再契約料)
- 新賃料の1ヶ月分
- 契約期間
- 2年(定借)
物件概要
- 特 徴
- 構 造
- 鉄骨造・鉄骨鉄筋コンクリート造/新耐震
- 物件タイプ
- 事務所
- 規 模
- 地下1階付10階建
- 取引態様
- 一般媒介
- 竣 工
- 2019年1月
- 設 備
-
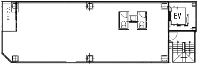
E V :1基、天井高:3,180mm(梁下2,730mm)㎜、床仕様:フローリング、空調:個別空調、トイレ:専用 男女別 洋式
- 備 考
-
■中途解約可能 ■解約予告:6ヶ月前 ■貸主指定の保証会社と保証委託契約を締結していただきます。
注) 上記の価格には、別途、消費税及び地方消費税が課されます。
消費税率が変更された場合には、以後、変更後の税率が課されることとなります。
物件情報更新日:2026-05-12
お気軽にお問合せください
- HOME
- >
- エリアから探す
- >
- 千代田区
- >
- 御茶ノ水・神田・秋葉原
- >
- 神田カドウチ
- >
- 神田カドウチ 8階
