新耐震
南部ビル
6階(東京都千代田区神田錦町)
新耐震
南部ビル
6階(東京都千代田区神田錦町)
- 賃料(坪単価):
- 相談(@―)
- 共益費(坪単価)
- :
- 賃料に含む (@―)
- 預託金(保証金/敷金)
- :
- ―(12ヶ月)
- 面積
- :
- 27.83坪 (92.02m²)
- 所在地
- :
- 東京都千代田区神田錦町2-7
- 最寄駅
- :
-
竹橋駅まで徒歩4分
大手町駅まで徒歩7分
大手町駅まで徒歩7分
神保町駅まで徒歩8分
神田駅まで徒歩10分
物件情報
所在地・アクセス
- 物件名
- 南部ビル 6階
- 所在地
- 東京都千代田区神田錦町2-7
- 最寄駅
-
東京メトロ東西線 竹橋駅まで徒歩4分
東京メトロ丸ノ内線 大手町駅まで徒歩7分
東京メトロ半蔵門線 大手町駅まで徒歩7分
都営三田線 神保町駅まで徒歩8分
JR中央線快速 神田駅まで徒歩10分
賃貸条件
- 賃料(坪単価)
- 相談(@―)
- 礼 金
- 無
- 共益費(坪単価)
- 賃料に含む(@―)
- 面 積
- 27.83坪 (92.02m²)
- 賃料+共益費(坪単価)
- 相談 (@―)
- 償 却
- 無
- 預託金(保証金/敷金)
- ―(12ヶ月)
- 入居可能日
- 2026年4月1日予定
- 更新料(再契約料)
- 新賃料の1ヶ月分
- 契約期間
- 2年
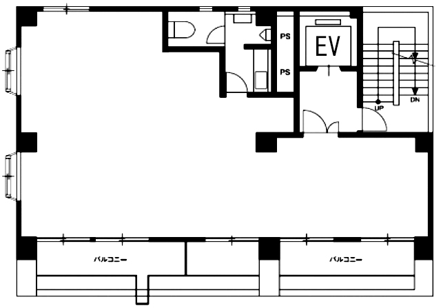
物件概要
- 特 徴
- 構 造
- 鉄筋コンクリート造/新耐震
- 物件タイプ
- 事務所
- 規 模
- 6階建
- 取引態様
- 一般媒介
- 竣 工
- 1990年
- 設 備
-
E V :1基(9人乗)、天井高:2500㎜、床仕様:OAフロア、空調:個別空調、トイレ:専用 男女別 洋式
- 備 考
-
※契約面積や賃貸条件は、㎡を基準単位とします。 ■貸室面積には、EVホール・トイレ・給湯室等の面積が含まれます。 ■床荷重:180㎏/㎡ ■専有部清掃費を、別途ご負担いただきます。
注) 上記の価格には、別途、消費税及び地方消費税が課されます。
消費税率が変更された場合には、以後、変更後の税率が課されることとなります。
物件情報更新日:2026-01-13
お気軽にお問合せください
- HOME
- >
- エリアから探す
- >
- 千代田区
- >
- 御茶ノ水・神田・秋葉原
- >
- 南部ビル
- >
- 南部ビル 6階
