新耐震
クロスシー東日本橋ビル
3階(東京都中央区東日本橋)
新耐震
クロスシー東日本橋ビル
3階(東京都中央区東日本橋)
- 賃料(坪単価):
- 相談(@―)
- 共益費(坪単価)
- :
- 賃料に含む (@―)
- 預託金(保証金/敷金)
- :
- ―(12ヶ月)
- 面積
- :
- 84.27坪 (278.59m²)
- 所在地
- :
- 東京都中央区東日本橋2-22-1
- 最寄駅
- :
-
東日本橋駅まで徒歩5分
馬喰町駅まで徒歩5分
馬喰横山駅まで徒歩5分
浅草橋駅まで徒歩6分
両国駅まで徒歩9分
物件情報
所在地・アクセス
- 物件名
- クロスシー東日本橋ビル 3階
- 所在地
- 東京都中央区東日本橋2-22-1
- 最寄駅
-
都営浅草線 東日本橋駅まで徒歩5分
JR総武線快速 馬喰町駅まで徒歩5分
都営新宿線 馬喰横山駅まで徒歩5分
JR中央線 浅草橋駅まで徒歩6分
JR中央線 両国駅まで徒歩9分
賃貸条件
- 賃料(坪単価)
- 相談(@―)
- 礼 金
- 無
- 共益費(坪単価)
- 賃料に含む(@―)
- 面 積
- 84.27坪 (278.59m²)
- 賃料+共益費(坪単価)
- 相談 (@―)
- 償 却
- 無
- 預託金(保証金/敷金)
- ―(12ヶ月)
- 入居可能日
- 即日
- 更新料(再契約料)
- 無
- 契約期間
- 2年
物件概要
- 特 徴
- 構 造
- 鉄骨造/新耐震
- 物件タイプ
- 事務所
- 規 模
- 8階建
- 取引態様
- 一般媒介
- 竣 工
- 2021年4月
- 設 備
-
E V :2基(13人乗)、天井高:3400㎜、床仕様:OAフロア(H=40mm)、空調:個別空調、トイレ:専用 男女別 洋式
その他:機械警備、駐車場設備あり
- 備 考
-
■床荷重:300㎏/㎡ ■電気容量⇒電灯:150A ■エントランス開放時間:全日7:00~21:00 ※左記時間帯以外は通用口よりセキュリティカード利用にて24時間入退館可能
注) 上記の価格には、別途、消費税及び地方消費税が課されます。
消費税率が変更された場合には、以後、変更後の税率が課されることとなります。
物件情報更新日:2026-02-02
お気軽にお問合せください
現在募集中の区画
- 階数
- 面積
- 賃料
- 共益費
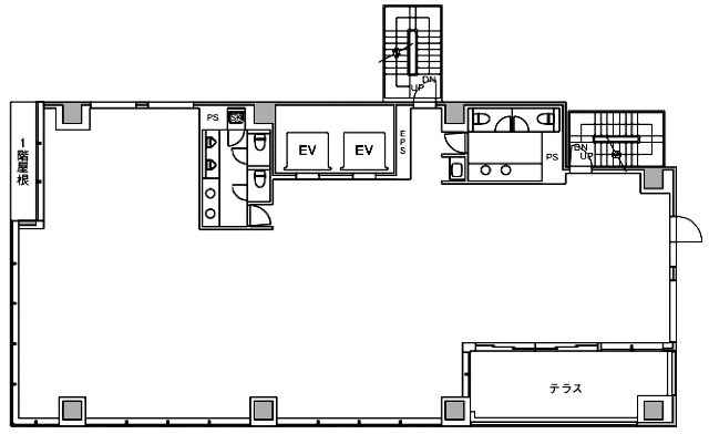
- 間取図
- HOME
- >
- エリアから探す
- >
- 中央区
- >
- 小伝馬町・東日本橋・日本橋浜町
- >
- クロスシー東日本橋ビル
- >
- クロスシー東日本橋ビル 3階
